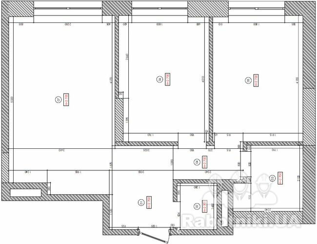
Електромонтаж квартири під ключ згідно з проєктом: квартира 56м (Киев)

№234786
Тендер закрыт
Електромонтаж квартири під ключ згідно з проєктом: квартира 56м (Киев)
Авто-перевод Показать оригинал

Шукаю відповідального майстра або бригаду для виконання повного комплексу електромонтажних робіт у квартирі площею 56 м. (ЖК Варшавський). Робота має виконуватися суворо за наявним технічним проєктом.

Основні етапи:

  • Розмітка та штроблення: Згідно з планом розеток та точок виводу освітлення.

  • Прокладання кабелю: Силові та слабострумні лінії (стеля/підлога).

  • Складання електрощита: Монтаж автоматики, та іншого.

  • Слабострумні мережі: Розведення інтернету (кручена пара/оптоволокно).

Вимоги до виконавця:

  • Вміння читати та чітко дотримуватися проєктної документації.

  • Наявність професійного інструменту.

  • Акуратність, дотримання термінів та відсутність шкідливих звичок.

Від замовника:

  • Надаю повний проєкт у форматі PDF або в роздрукованому вигляді.

  • Закупівля матеріалів: Варіанти обговорюються (матеріали майстра або самостійна закупівля).

  • Бюджет: Остаточна вартість фіксується після вивчення проєкту або виїзду на об єкт.

Бюджет до 40 000 грн
Владелец
Можно начать 29.01.2026
Отредактировано 14.04.2026, 10:21:21

Олександр
Зарегистрирован 2 месяца назад
Был на сайте 2 дня назад
Киев (Киевская область)
Предложения по тендеру (6)
Мастер Андрій Панькевич
На сайте уже 2 месяца
Был 11 часов назад
Рейтинг: 45 из 80
2 месяца назад
Лучшее предложение
Бригада Універсал-груп
На сайте уже 8 лет
Был 54 минуты назад
2 месяца назад
Бригада ABGT
На сайте уже 2 года
Был 12 часов назад
Рейтинг: 39 из 80
2 месяца назад
Мастер Андрій Савулко
На сайте уже год
Был 12 часов назад
Рейтинг: 31 из 80
Авто-перевод Показать оригинал
Количество человек: 2

ПРОПОНУЮ ПОСЛУГИ ЕЛЕКТРИКА

. Електромонтажні роботи

. Розведення кабелю згідно проекту

. Заміна старої проводки

. Штроблення стін ( бетон , цегла , газоблок...)

. Вирізка отворів під підрозетник ( бетон, цегла, газоблок...)

. Встановлення розеток і вимикачів

. Підключення світлових пристроїв люстри,бра, точкові світильники...

. Підключення електрощитів

. Монтаж розподільчих щитів

. Вуличне освітлення

. Заземлення

Працюю без посередників .

Ціни та портфоліо в особисті ( акаунт на кабанчика )

Замовлення приймаю ту вайбер телеграм (097) xxx xxxx

Тел.(097) xxx xxxx Андрій

2 месяца назад
Мастер Олег Гновенко
На сайте уже год
Был 3 дня назад
Рейтинг: 34 из 80
Авто-перевод Показать оригинал
Предоплата: Без предоплаты
Количество человек: 2

Вітаю 🙌

☑️ Виконаємо під ключ 🔑 електромонтажні ⚡️ роботи

🔥Ціни середні по цьому сайту

🔝 Якість гарантуємо на найвищому рівні та порядність

️ Фото виконаних робіт додаю

⚠️ Допомога в закупівлі матеріалів

🏁 Оплата по факту виконання робіт

Скачать файлы:
2 месяца назад
Мастер Іван Клокун
На сайте уже 2 года
Был 7 часов назад
Рейтинг: 33 из 80
Авто-перевод Показать оригинал
Можем приступить: 06.02.2026
Количество человек: 2

Добрий день можемо обговорити Ваше питання. Готовий до виконання роботи та маю постачальників, магазини зі знижками на матеріал

Додаю фото робіт

Скачать файлы:
2 месяца назад
Служба поддержки