Електромонтажні роботи в квартирі після забудовника (Киев)

№227759
Тендер закрыт
Електромонтажні роботи в квартирі після забудовника (Киев)
Авто-перевод Показать оригинал

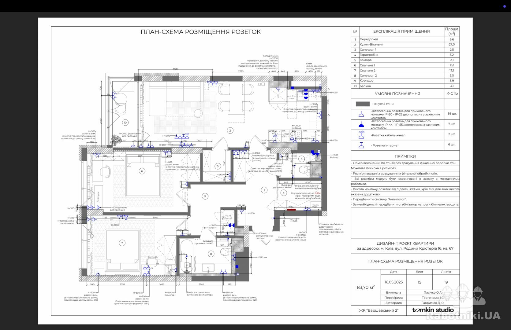
Електромонтажні роботи в новобудові 83м2 Розведення проводки по стелі з комутаціями в розподільчих коробках з гільзуванням скруток Чекаю на кошторис робіт та розрахунок кількості матеріалів Проект в файлах

Бюджет до 500 грн
Владелец
Можно начать 06.10.2025
Отредактировано 12.10.2025, 03:21:00

Віктор
Зарегистрирован 8 месяцев назад
Был на сайте 4 дня назад
Киев (Киевская область)
Предложения по тендеру (13)
Бригада Універсал-груп
На сайте уже 8 лет
Был 2 часа назад
6 месяцев назад
Компания Електро-Київ
На сайте уже 9 месяцев
Был 2 дня назад
Рейтинг: 37 из 80
Авто-перевод Показать оригинал

Доброго дня , можемо допомогти, пишіть на вайбер-телеграм 0-9-3-1-0-4-0-3-1-5

6 месяцев назад
Мастер Віталій
На сайте уже 5 лет
Был 16 часов назад
Рейтинг: 34 из 80
Авто-перевод Показать оригинал

Електромонтажні роботи

(097) xxx xxxx

(097) xxx xxxx

Віталій

6 месяцев назад
Бригада Максим Михалин
На сайте уже 6 лет
Был 3 дня назад
Авто-перевод Показать оригинал
Стоимость работ: 20000
Предоплата: С частичной предоплатой
Количество человек: 3

Робота 20К (чорнова). Строк 4 дні. Є весь матеріал, якщо потрібно.

6 месяцев назад
Мастер александр Анатольевич кот
На сайте уже 8 лет
Был 2 дня назад
Рейтинг: 32 из 80

Звертайтесь зробим

6 месяцев назад
Бригада Імперія Ремонту
На сайте уже 9 лет
Был 5 дней назад

Звертайтесь можемо виконати

6 месяцев назад
Бригада Комплексный ремонт
На сайте уже 6 лет
Был 6 часов назад
Рейтинг: 37 из 80

Звертайтесь. 1000грн. Метр квадратний

Отредактировано 03.10.2025, 20:45:08
6 месяцев назад
Мастер Олег Гновенко
На сайте уже год
Был 10 дней назад
Рейтинг: 33 из 80
Авто-перевод Показать оригинал
Можем приступить: 01.10.2025
Предоплата: Без предоплаты
Количество человек: 2

Вітаю 🙌

Для детального прорахунку відправте на вайбер, телеграм проект

☑️ Виконаємо під ключ 🔑 електромонтажні ⚡️ роботи

🔥Ціни середні по цьому сайту

🔝 Якість гарантуємо на найвищому рівні та порядність

️ Фото виконаних робіт додаю

⚠️ Допомога в закупівлі матеріалів

🏁 Оплата по факту виконання робіт

Скачать файлы:
6 месяцев назад
Мастер Володимир Попов
На сайте уже 3 года
Был 33 минуты назад
6 месяцев назад
Мастер Олександр Назаренко
На сайте уже 6 месяцев
Был 4 месяца назад
Рейтинг: 25 из 80
Авто-перевод Показать оригинал

Електромонтажні роботи якісно та швидко, телефонуйте наразі вільний

6 месяцев назад
Мастер Джалил Гасанзаде
На сайте уже год
Был день назад
Компания МiнСталь
На сайте уже 4 года
Был 10 часов назад
Рейтинг: 35 из 80
Авто-перевод Показать оригинал
Стоимость работ: 77000
Цена за выезд: 400 грн

Надаємо послуги електромонтажних робіт як у процесі так і з нуля. Індивідуальний підхід, реалізація ідей.

6 месяцев назад
Мастер Сергей Беленин
На сайте уже 11 лет
Был 3 дня назад
Рейтинг: 41 из 80
Авто-перевод Показать оригинал
Можем приступить: 02.10.2025
Предоплата: Без предоплаты
Количество человек: 1

Якщо ще актуально - звертайтесь, зроблю все якістно і швидко. Інструмент весь в наявності. Має значення місце розташування об єкта.

6 месяцев назад
Служба поддержки