Гіпсокартонні та штукатурні роботи та вен(вартість робіт узгоджується) (Киев)

№235673
Тендер закрыт
Гіпсокартонні та штукатурні роботи та вен(вартість робіт узгоджується) (Киев)
Авто-перевод Показать оригинал

Штукатурка та фарбування місць під радіатор (кімната та кухня);

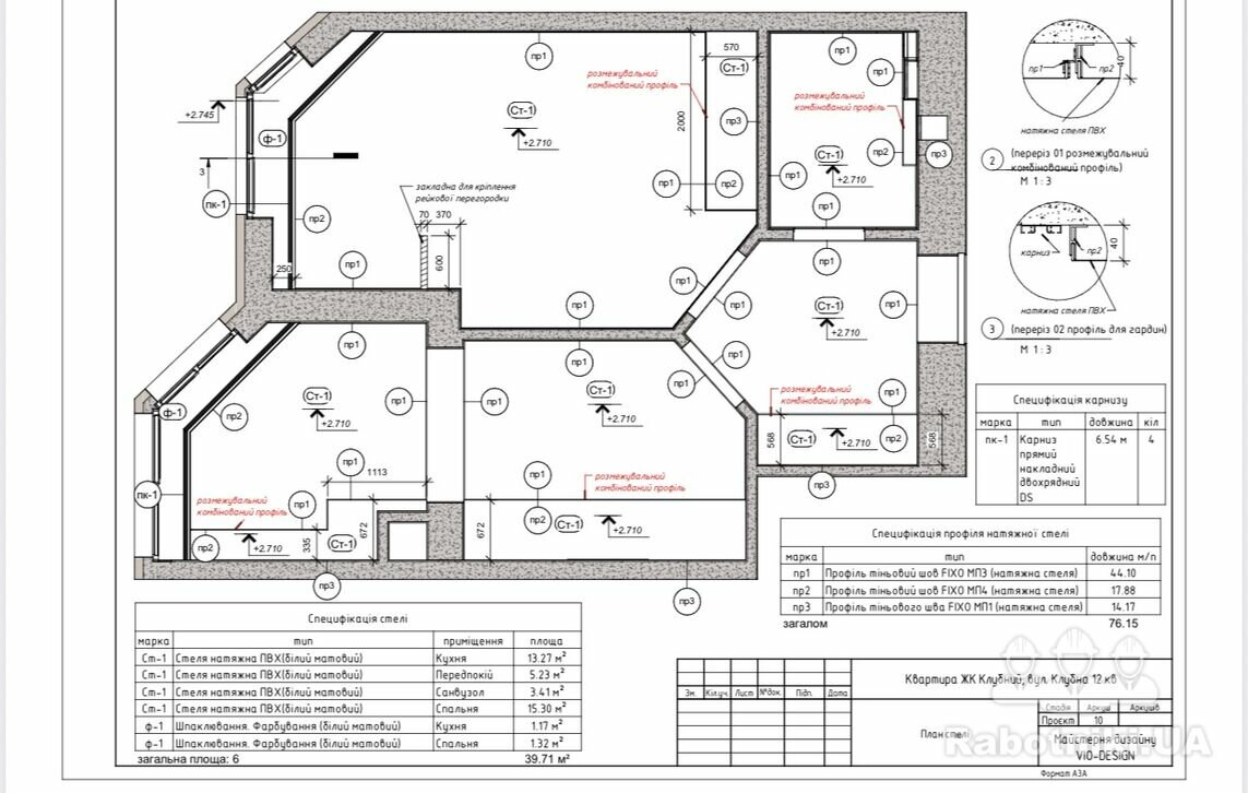
виготовлення стелі (кухня та кімната ) під покраску для подальшого стикування з натяжним потолком (креслення надано);

штукатурка штроб після прокладки електрики та сантехніки (кухня, коридор, кімната);

штукатурка в санвузлі під укладання плитки цементно ізвестковою сумішшю з набивкою оцинкованої металевої сітки до 8-10 кв;

зробити гіпсокартонову конструкцію по наданому кресленню в санвузлі;

штукатурні роботи після встановлення підвіконь (кухня та кімната);

зробити примусову вентиляцію в кухні.

Бюджет до 500 грн
Владелец
Можно начать 28.02.2026
Отредактировано 21.02.2026, 14:50:42

Наталья
Зарегистрирован 4 года назад
Был на сайте 14 часов назад
Киев (Киевская область)
Предложения по тендеру (1)
Бригада Універсал-груп
На сайте уже 8 лет
Был 9 часов назад
месяц назад
Служба поддержки