Монолітні роботи (Бородянка)

№228414
Тендер закрыт
Монолітні роботи (Бородянка)
Авто-перевод Показать оригинал

Необхідно виконати монолітні роботи по влаштуванню колон та плит перекриття 1 та 2 поверху.

Об єм робіт наступний:

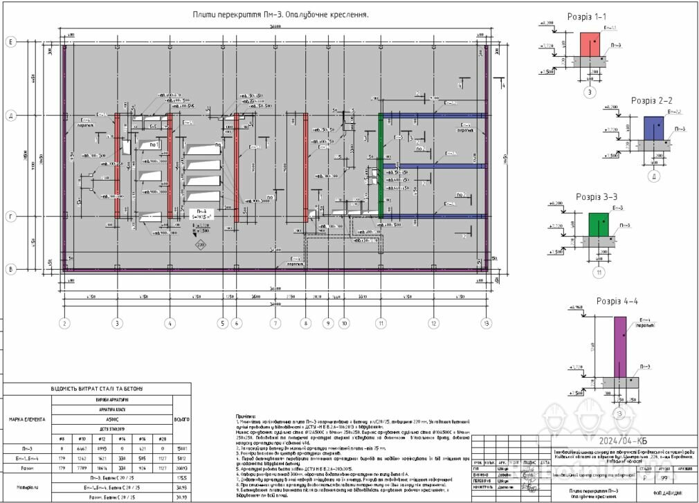
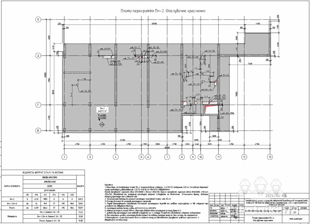
плита перекритя 1-й поверх -123м3

балки 1-й поверх - 13,5м3

колони та монолітні стіни 2-й поверх - 33м3

плита перекритя 2-й поверх -176м3

балки 2-й поверх - 39м3

Загальний об єм - 384 м3

Необхідна бригада 8-10 чоловік. Терміни виконання до 15 листопада, приступати до виконання робіт можна одразу (все готово, опалубка на місці, проживання на майданчику - битівки є)

Контактний телефон: *** Юрій

Бюджет свыше 500 000 грн
Владелец
Можно начать 09.10.2025, Нужно закончить до 17.11.2025

Юрій
Зарегистрирован 8 месяцев назад
Был на сайте месяц назад
Бородянка (Киевская область)
Предложения по тендеру (2)
Компания Патока Сергій
На сайте уже год
Был 6 часов назад
Рейтинг: 28 из 80
Авто-перевод Показать оригинал

Доброго дня. Готові домовлятися...

7 месяцев назад
Компания ООО БК Кing Building
На сайте уже 8 лет
Был 17 часов назад
Авто-перевод Показать оригинал

Доброго дня.

Готові запропонувати свої послуги.

Вартість робіт за готівку складє - 1453500 грн.

Авансування складє 30 % від загальної вартості .

Розрахунок кожну неділю за мінус авансування по 10% .

Договір, терміни , порядність гарантуємо.

7 месяцев назад
Служба поддержки