Монтаж модульної котельні (Киев)

№197137
Тендер закрыт
Монтаж модульної котельні (Киев)
Авто-перевод Показать оригинал

Потрібна бригада (зварювальники, слюсарі) з досвідом, для монтажу котельні.
Обсяг робіт:
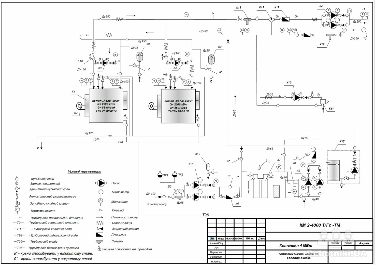
Виготовлення 3-х контейнерів габаритами 8х2,5 метрів, з металевого профілю та профнастилу. Утеплення 100 мм вата.

Обв язка котлів з обладнанням (ТМК, ГПВ). Котельні газові, в кожній котельні по 2 котли. Схема передбачає рецуркуляційні насоси, мережеві насоси, ХВП, підживлення, димоходи в межах котельні. Детально на проекті

На разі котельня 5,0 МВт. В планах будуть ще.

Можлива довгострокова співпраця.

Робота в цеху, зараз зможемо забезпечити роботою до кінця року.

Вартість обговорюються.

Бюджет до 400 000 грн
Владелец
Можно начать 21.10.2024
Отредактировано 22.10.2024, 10:58:42

ТОВ "ПРОМБУДТЕПЛО"
Зарегистрирован 9 лет назад
Был на сайте 8 месяцев назад
Киев (Киевская область)
Предложения по тендеру (1)
Мастер Игорь Кузнецов
На сайте уже 2 года
Был 17 дней назад
Рейтинг: 28 из 80

Делаем такую работу. Опыт большой. Все обговоры при непосредственном общении. Звоните.

год назад
Служба поддержки