Монтаж постів підготовки 8х4,0х3,2 - 2шт (Ровно)

№229633
Тендер закрыт
Монтаж постів підготовки 8х4,0х3,2 - 2шт (Ровно)
Авто-перевод Показать оригинал

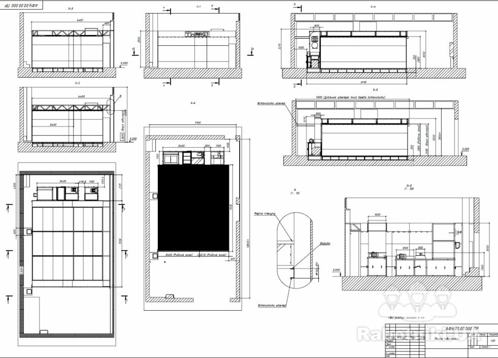
Огороджувальна штора з направляючими 1 компл

Фільтрувальна касета зі скловолоконним фільтром типу PaintStop 1 компл

Комплект стельових світильників, LED T8 1200mm, 4х18Вт 1 компл

Відцентрова вентиляційна установка припливна, з електродвигуном 1 шт

Конструктив стельовий з комплектом рамок фільтрів стелі 1 компл

Стійка підтримки стельового пленуму 4 шт

Комплект повітропроводів з єднання стельового конструктиву і витяжної шафи з вентиляційними установками 1 компл

Пульт керування з системами автоматики і контролю1 шт

Терморегулятор 1 шт

Лічильник мотогодин 1 шт

Подіум 1 компл

Бюджет до 100 000 грн
Владелец
Можно начать 27.10.2025, Нужно закончить до 10.11.2025
Отредактировано 31.10.2025, 19:21:18

Blastpro
Зарегистрирован 5 месяцев назад
Был на сайте месяц назад
Ровно (Ровенская область)
Предложения по тендеру (1)
Бригада Сергей Гайдамака
На сайте уже 7 лет
Был 5 дней назад
Авто-перевод Показать оригинал
Количество человек: 3

Доброго дня. Можемо змонтувати пости підготовки. Це серія APP-STANDART чи APP-FlatFloor? Дзвоніть домовимовся.

5 месяцев назад
Лучшее предложение
Служба поддержки