Підпірна стіна (Хмельницкий)

№229163
Тендер открытТендер открыт для предложений
Підпірна стіна (Хмельницкий)
Авто-перевод Показать оригинал

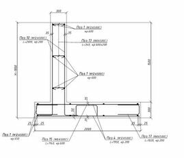
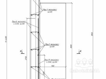
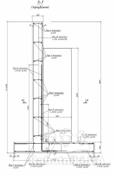
Запрошуємо до співпраці підрядників або бригаду будівельників для влаштування підпірної стіни згідно з проєктною документацією.

📍 Об єкт: Хмельницька область, Хмельницький район, Розсошанська сільська рада
📄 Проєкт та кошторис: додаються
Строк виконання робіт: до 2 місяців

Зацікавлених просимо надсилати пропозиції або контакти для узгодження деталей.

Бюджет до 506 000 грн
Подрядчик (ищу на субподряд)
Можно начать 24.10.2025, Нужно закончить до 15.12.2025
Отредактировано 17.10.2025, 09:16:30

Аквілон-СК
Зарегистрирован 7 лет назад
Был на сайте 20 часов назад
Хмельницкий (Хмельницкая область)
Предложения по тендеру (3)
Бригада Общестрой
На сайте уже 9 лет
Был 16 часов назад
8 дней назад
Бригада Спочатку міркуєм
На сайте уже 3 года
Был 11 часов назад
Рейтинг: 31 из 80
Авто-перевод Показать оригинал

проставив актуальні ціни готівка (і то не факт що буде кому робити) , з пдв множити на 2.

Скачать файлы:
8 дней назад
Мастер Микола Живченко
На сайте уже год
Был день назад
Авто-перевод Показать оригинал

Добрий день! Якщо актуально, можемо виконати швидко та якісно роботу! (067) xxx xxxx

2 дня назад
Добавить предложение
Служба поддержки