Потолок Грильято 55м2 (Днепр)

№227827
Тендер закрыт
Потолок Грильято 55м2 (Днепр)

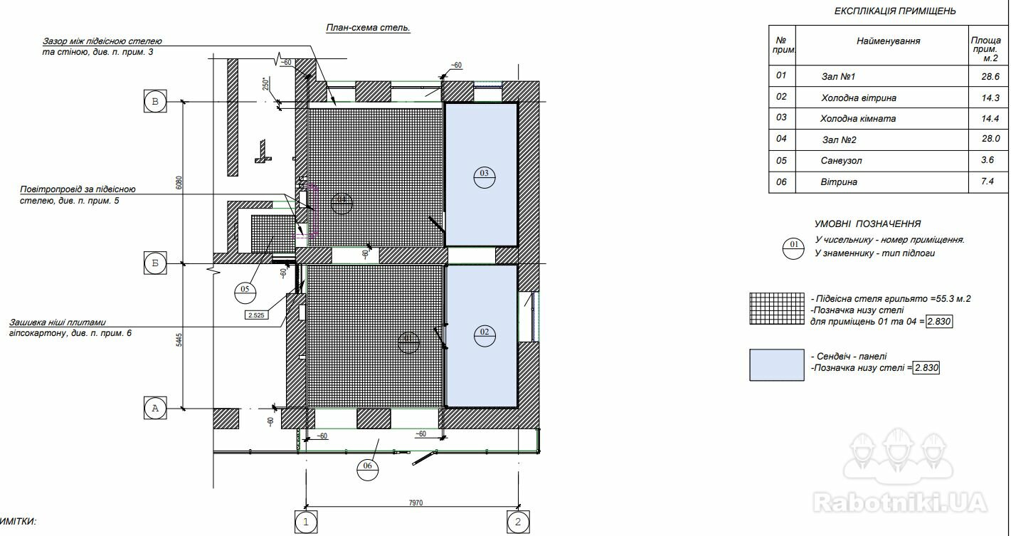
Смонтировать потолок Грильято ячейка 75*75. Существующий потолок - бетонный. Стены помещения - гипсокартон, кирпич, кафель, мебель( в с/у), сэндвич-панель (сэндвич-панель - стена морозильной камеры, к ней крепить нельзя)

Бюджет до 10 000 грн
Подрядчик (ищу на субподряд)
Можно начать 08.10.2025

Елена
Зарегистрирован 5 лет назад
Был на сайте 17 дней назад
Днепр (Днепропетровская область)
Предложения по тендеру (3)
Бригада ПГС-2010
На сайте уже 8 лет
Был 10 часов назад
Рейтинг: 41 из 80

Звоните или оставьте номер телефона, бюджет явно маленький

7 месяцев назад
Бригада D-mag
На сайте уже 3 года
Был 19 часов назад
7 месяцев назад
Мастер Александр Григорук
На сайте уже 10 месяцев
Был 10 дней назад
Рейтинг: 22 из 80
7 месяцев назад
Служба поддержки