Потрібно покрити ПВХ мембраною покрівлю! (Бородянка)

№233956
Тендер закрыт
Потрібно покрити ПВХ мембраною покрівлю! (Бородянка)
Авто-перевод Показать оригинал

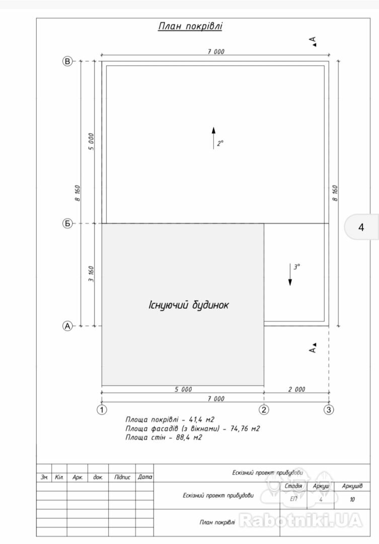
Потрібно покрити ПВХ мембраною покрівлю з СІП панелей під ключ!

Покрівля пласка!

Приблизно +-40 м/2.

Об єкт знаходиться в селі Красний Ріг (Бородянський район)

Ціна договірна!

Усі питання по телефону або Viber, Telegram, WhatsApp!

Бюджет до 60 000 грн
Владелец
Можно начать 05.01.2026
Отредактировано 03.01.2026, 18:08:27

Олег Іванович
Зарегистрирован 8 лет назад
Был на сайте 2 дня назад
Бородянка (Киевская область)
Служба поддержки