Ремонт квартиры в новострое "под ключ" (Днепр)

№76970
Тендер закрыт
Ремонт квартиры в новострое "под ключ" (Днепр)

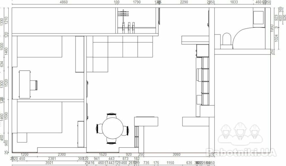
63 квадрата в Палермо есть дизайн-проект сделана стяжка, установлены мп окна, разведено отопление, установлены радиаторы.

нужно сделать ремонт от текущего состояния до идеального в кратчайшие сроки.

Бюджет до 50 000 грн
Можно начать 23.01.2019

Игорь
Зарегистрирован 6 лет назад
Был на сайте 6 лет назад
Днепр (Днепропетровская область)
Предложения по тендеру (14)
Бригада трудолюбивые мастера
На сайте уже 7 лет
Был 6 лет назад
6 лет назад
Мастер Александр Пуха
На сайте уже 9 лет
Был месяц назад
Рейтинг: 38 из 80

Выполню ваш заказ . фото , отзывы имеються . цены на сайте!

6 лет назад
Мастер Петухов Виктор
На сайте уже 7 лет
Был 6 лет назад
Рейтинг: 0 из 80

Выполним заявленный объем в кратчайшие сроки

6 лет назад
Бригада "ИНОВА-СТРОЙ"
На сайте уже 9 лет
Был 3 дня назад
Рейтинг: 38 из 80

будем рады сотрудничеству , звоните обсудим.

6 лет назад
Компания ООО Гибар
На сайте уже 8 лет
Был месяц назад
Рейтинг: 30 из 80

ООО Гибар. База строительных материалов по оптовым ценам. Доставка,подъём на этаж. (050) xxx xxxx Сергей.

6 лет назад
Мастер ТОВ "КОМПАНІЯ ЕЛЕКТРОМОНТАЖ ПЛЮС"
На сайте уже 8 лет
Был 5 месяцев назад
Мастер Сергей Борисович Соловьев
На сайте уже 8 лет
Был год назад
6 лет назад
Бригада Домострой1
На сайте уже 7 лет
Был 9 месяцев назад

Можем приступить с 1.02.2019. цена за квадрат от 4500грн. Срок до 1.5 мясяца при условии своевременной поставки матертала. На ремонт гарантия. Будем рады сотрудничеству

6 лет назад
Бригада УютныйДом
На сайте уже 7 лет
Был 5 лет назад
Рейтинг: 24 из 80

Звоните обсудим

6 лет назад
Бригада СтройCompany
На сайте уже 7 лет
Был день назад
Рейтинг: 34 из 80

Бригада специалистов готова качественно и в срок выполнить ваш заказ! Обращайтесь по тел.(095) xxx xxxx Евгений, и все обсудим.

6 лет назад
Компания "ЭлитСтройСервис"
На сайте уже 6 лет
Был 6 лет назад
6 лет назад
Бригада Proffi
На сайте уже 8 лет
Был 3 года назад
Рейтинг: 26 из 80

Готовы за дорого и в кратчайшие сроки выполнить весь комплекс работ. (099) xxx xxxx Дмитрий

6 лет назад
Бригада dpprofrem
На сайте уже 8 лет
Был 3 года назад
Рейтинг: 29 из 80

Добрый день выполняем ремонт под ключ цены адекватные качественно!!! (099) xxx xxxx Сергей

6 лет назад
Мастер Илья Джуманиязов
На сайте уже 6 лет
Был 3 года назад
Рейтинг: 26 из 80
Стоимость работ: 50

Можем сделать ремонт на таки сумму около 50 60 тысяч

6 лет назад
Служба поддержки