СБОРНОЙ ФУНДАМЕНТ ФБС 120 ШТ БЛОКИ ФУНДАМЕНТА 33 ШТ (Киев)

№236803
Тендер открытТендер открыт для предложений
СБОРНОЙ ФУНДАМЕНТ ФБС 120 ШТ БЛОКИ ФУНДАМЕНТА 33 ШТ (Киев)
Авто-перевод Показать оригинал

ТЕХНИЧЕСКОЕ ЗАДАНИЕ (ТЗ)

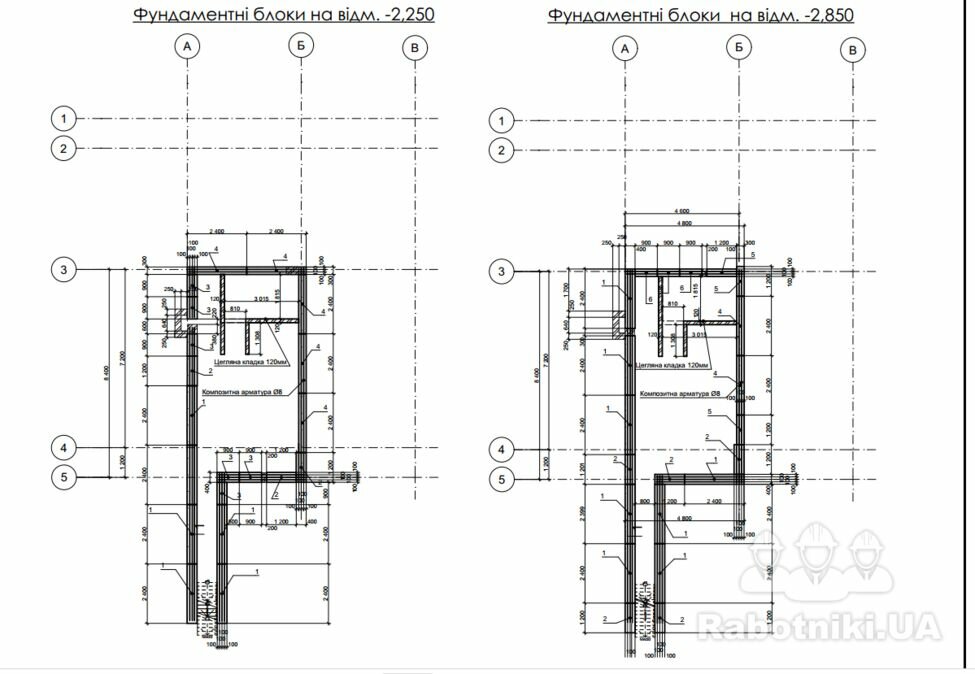
Объект: Устройство сборного фундамента (ФО + ФБС)

Локация: с. Старые Петровцы. Основание для работ: Проект АБ (Вариант №3, разделы 17-21).

1. ОБЩИЕ ТРЕБОВАНИЯ

  • Работы ведутся в готовом котловане - ПРЕДВАРИТЕЛЬНО ВЫКОПАН БУДЕТ ЭКСКАВАТОРОМ.

  • Обязательное наличие инструмента у подрядчика: нивелир (оптический/лазерный), виброплита, глубинный вибратор для бетона.

  • Соблюдение проектных отметок, геометрии (диагоналей) и вертикальности стен.

2. ПЕРЕЧЕНЬ И ОБЪЕМ РАБОТ

2.1. Подготовка основания и монтаж подошвы

  • Ручная доработка и выравнивание дна котлована после экскаватора.

  • Укладка геотекстиля на дно траншей.

  • Устройство песчано-щебневой подушки с послойным трамбованием.под блоками.

  • Монтаж плит основания ФО (33 шт.) на подготовленное основание строго по нивелиру.

2.2. Возведение стен из ФБС (Монтаж)

  • Монтаж блоков ФБС: ~122 шт. (согласно раскладке).возможно - 18 шт

  • Оптимизация высоты: В левой части -4 ряда (подвал). В правой части на отметке -1.650 блок фундамент переходит на ступеньку (1-2 ряда ФБС).

  • Армирование швов: Укладка композитной арматуры в раствор. В зоне подвала -каждый 2-й ряд.

  • Узлы примыкания: На углах и Т-стыках композитная арматура связывается со стальными Г-образными анкерами ( 10-12 мм) с нахлестом 500 мм.

2.3. Монолитные работы

  • Монолитные участки (МУ): Заполнение пустот между блоками (согласно Листу АБ.17). Армирование сталью ( 12, 8), бетон В25.

  • Армопояс: Устройство монолитного пояса по верху всех стен (высота 200-250 мм). Армирование сталью: 4 стержня 12, хомуты 8 (шаг 200-250 мм).

  • ПОЛ подвала , по грунту + выход из подвала ( 6 метров)

2.4. Изоляция и защита

  • Гидроизоляция: Праймирование стен и нанесение вертикальной обмазочной гидроизоляции (мастика в 2 слоя) по всей наружной площади подвала.

  • Горизонтальная изоляция: Рубероид под 1-й ряд блоков и под основные стены дома.

  • Утепление: Монтаж листов ЭППС на наружные стены подвала. -ПОКА НЕ РАССМАТРИВАЕМ, возможно после перекрытия подвала

2.5. Обратная засыпка

  • Засыпка пазух фундаментного рва с послойным трамбованием каждые 30 см (песок или непросадочный грунт).

2.6. Возможно перекрытие плитами подвала, указать стоимость за монтаж плиты.

3. Прошу оценить стоимость работ по следующим позициям:

  1. Подготовка основания (геотекстиль + мембрана) за м.п. / м

  2. Подготовка основания ( подушка + трамбовка) -за м.п. / м

  3. Монтаж плиты ФО -за шт.

  4. Монтаж блока ФБС -за шт.

  5. Армирование швов (композит + стальные углы) - за м.п. стены

  6. Устройство верхнего армопояса (опалубка + каркас + бетон) -за м.п. или куб

  7. Монолитные участки (МУ) -за узел / м

  8. Гидроизоляция битумом + рубероид -за м

Возможно что-то упущено, детально в проект можно будет посмотреть при уточнении объемов+ доп работы. Кран и єкскаватор будет, если есть увас кран, можем рассмотреть его.

Бюджет до 300 000 грн
Владелец
Можно начать 30.03.2026, Нужно закончить до 30.04.2026

Андрей
Зарегистрирован месяц назад
Был на сайте 12 минут назад
Киев (Киевская область)
Предложения по тендеру (2)
Компания TMM group ua
На сайте уже 10 лет
Был 47 минут назад
Рейтинг: 48 из 80
3 часа назад
Бригада будмастер 9
На сайте уже 7 лет
Сейчас на сайте
Рейтинг: 38 из 80

Добрый день .

Можем выполнить монтаж блоков фбс.

Фото наших работ в портфолио сайта.

Весть инструмент в наличии от виброплиты до оптического нивелира.

Отправьте мне что нибудь на вайбер .я отправлю стоимость работ по пунктам.

(097) xxx xxxx Геннадий

час назад
Добавить предложение
Служба поддержки