Строительство административных и бытовых внутренних помещений (Киев)

№170153
Тендер закрыт
Строительство административных и бытовых внутренних помещений (Киев)

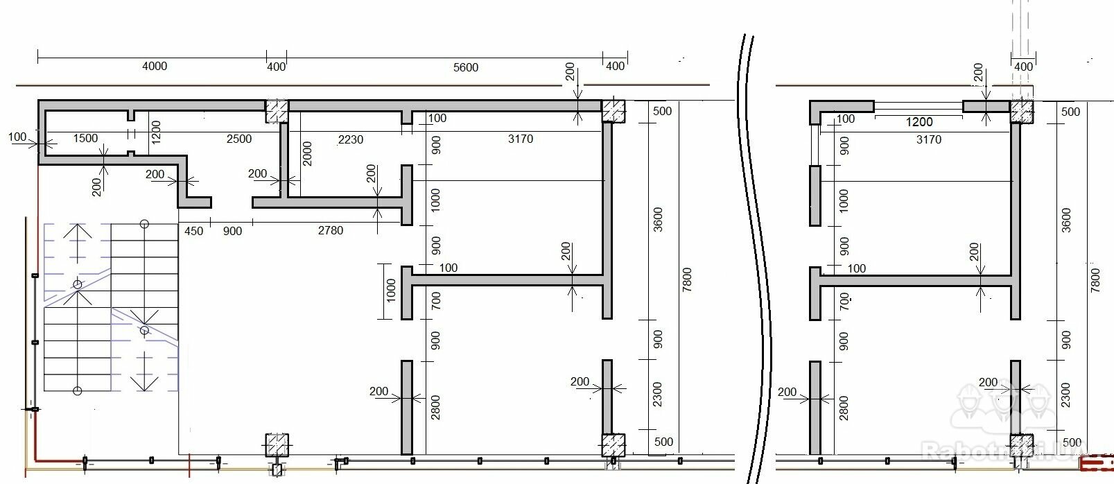
Внутри готового складского помещения с пром. полами требуется под ключ построить презентабельные административно-бытовые помещения и с/узлы. Общая площадь - 60м2. Форма оплаты - безнал.расчет.

Бюджет свыше 500 000 грн
Владелец
Можно начать 11.07.2023, Нужно закончить до 01.09.2023
Отредактировано 14.07.2023, 08:29:12

Виктор
Зарегистрирован 2 года назад
Был на сайте 2 года назад
Киев (Киевская область)
Предложения по тендеру (9)
Компания ФОП Ивашкин Сергей Сергеевич
На сайте уже 5 лет
Был 2 дня назад
Рейтинг: 55 из 80
2 года назад
Компания ТОВ"МІСТОБУД-ГРУПП"
На сайте уже 9 лет
Был год назад
Рейтинг: 27 из 80
2 года назад
Компания ФОП Козапойк Олексій Олександрович
На сайте уже 5 лет
Был 15 часов назад
2 года назад
Мастер Виталий Воронцов
На сайте уже 3 года
Был 2 месяца назад
Рейтинг: 30 из 80

Добрый день. Готовы взяться 4 человека

2 года назад
Компания ООО БК Кing Building
На сайте уже 8 лет
Был 13 часов назад

Доброго дня.

Готові запропонувати свої послуги.

Маємо досвід і досвідчених майстрів.

Ориєнтовна вартість робіт з матеріалом і різними витратами складе -1200000 грн.

Для більш точного прорахунку ,потрібно тех. завдання ,або дизайн-проект даних приміщень.

Договір , терміни, порядність гарантуємо.

2 года назад
Компания ЕвроТехСтрой
На сайте уже 7 лет
Был 4 месяца назад
Рейтинг: 32 из 80

Бригада з власним інструментом та досвідом подібних робіт.(093) xxx xxxx

Можемо показати в княжичах в цеху на 7000м2 офіс зі столовою збудований нами.

2 года назад
Мастер Андрей
На сайте уже 5 лет
Был год назад
Рейтинг: 23 из 80

Доброго дня.
Працюємо вже 7 рокіа.
Можемо зробити Ваш заказ.

Нуль шість вісім
Девять пять
Девять пять
Два сім два

2 года назад
Компания YESRemont
На сайте уже 4 года
Был год назад
2 года назад
Компания БУД ЕЛІТ
На сайте уже 5 лет
Был 10 дней назад
Рейтинг: 33 из 80

47000$ под ключ с материалами.

2 года назад
Служба поддержки