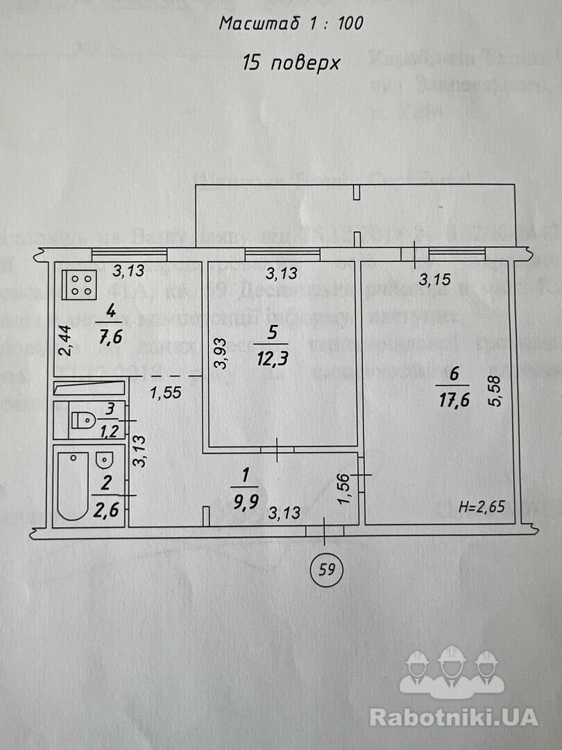
ТЕРМІНОВО Косметичний ремонт 1 ком. 35 м 2 (Киев)

№228706
Тендер закрыт
ТЕРМІНОВО Косметичний ремонт 1 ком. 35 м 2 (Киев)
Авто-перевод Показать оригинал

Терміново потрібно зробити ремонт 1-но кімнатна квартира на Троещине 35 м2 .
- малярні роботи ( фініш + шпалери )

- підготовка пола під укладання ламінату самовирівнююща суміш + укладання ламінату.
- установка меж кімнатних дверей .
- плитка ( фартух) 3 м 2

Ціни та термін виконання можемо обговорити за телефоном *** Тетяна

Бюджет до 75 000 грн
Владелец
Можно начать 12.10.2025, Нужно закончить до 02.11.2025
Отредактировано 12.10.2025, 14:11:33

Татьяна
Зарегистрирован 5 месяцев назад
Был на сайте 8 дней назад
Киев (Киевская область)
Предложения по тендеру (6)
Компания Підрядник
На сайте уже 8 лет
Был час назад
Рейтинг: 47 из 80
5 месяцев назад
Бригада ОлексІй Будівельники
На сайте уже 8 лет
Был 3 дня назад
5 месяцев назад
Бригада Мастера на 100%
На сайте уже 10 лет
Был 13 часов назад
Авто-перевод Показать оригинал
Можем приступить: 13.10.2025
Цена за выезд: 1000 грн
Количество человек: 2

Добрий вечір.Закінчили об єкт.Можемо зробити ремонт у вашій квартирі.Можу показати свої зроблені об єкти.Срок маленький. Зараз сиро і холодно,все буде сохнути довше ніж влітку.Ціні на основні роботи

грунтовка 35 грн м2 за один шар,

шпаклівка під шпалери 180 грн 1 м2

поклейка шпалер 170 грн 1 м2,

самовирівнюча стяжка від 220 грн 1м2

ламінат 250 грн 1 м2

міжкімнатні двері 2500 грн 1 шт

плитка 850 грн 1 м2

Можу все прорахувати завтра чи коли вам зручно,живу недалеко. Матеріали та двері є можливість замовляти зі знижкою. Звертайтеся.

Отредактировано 12.10.2025, 21:56:25
5 месяцев назад
Компания МiнСталь
На сайте уже 4 года
Сейчас на сайте
Рейтинг: 36 из 80
Авто-перевод Показать оригинал
Цена за выезд: 300 грн

Надаємо послуги електромонтажних робіт як у процесі так і з нуля. Індивідуальний підхід, реалізація ідей.

5 месяцев назад
Мастер Вадим Ященко
На сайте уже год
Был 15 часов назад
Рейтинг: 36 из 80
Цена за выезд: 600 грн

Укладка плитки - это искусство, сочетающее в себе ручное мастерство и современные технологии❗

👉 Современное оборудование значительно облегчает работу укладчика и повышает качество укладки.

Попробуйте услуги мастера Вадима Ященко, и у вас будет на одну проблему меньше...☕️

Скачать файлы:
5 месяцев назад
Мастер Анатолій Боднар
На сайте уже 6 месяцев
Был 4 месяца назад
Рейтинг: 21 из 80
Авто-перевод Показать оригинал
Можем приступить: 15.10.2025
Стоимость работ: 75000
Цена за выезд: 700 грн
Предоплата: С частичной предоплатой
Количество человек: 1

Вітаю! Мене звати Анатолій. Я можу виконати ремонт Вашої кімнати за предложений Вами бюджет. Якщо цікаво- набирайте (050) xxx xxxx. Дякую.

5 месяцев назад
Служба поддержки