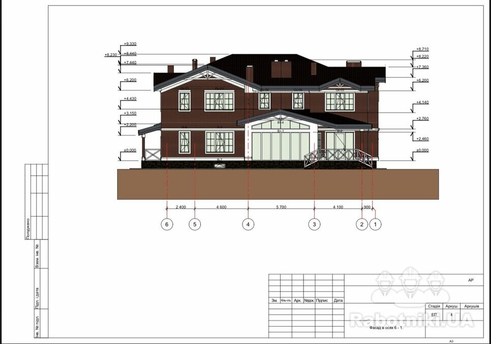
Влаштування фасаду 400 м. Початок робіт травень. (Борисполь)

№235315
Тендер закрыт
Влаштування фасаду 400 м. Початок робіт травень. (Борисполь)
Авто-перевод Показать оригинал

Влаштування фасаду 400 м : Мінвата 100 мм + Клінкерна плитка + декор

Бюджет до 700 000 грн
Владелец
Можно начать 10.05.2026, Нужно закончить до 15.09.2026
Отредактировано 10.02.2026, 20:15:31

Алесандр
Зарегистрирован 8 лет назад
Был на сайте месяц назад
Борисполь (Киевская область)
Предложения по тендеру (13)
Компания ФОП Ивашкин Сергей Сергеевич
На сайте уже 5 лет
Был 13 дней назад
Рейтинг: 54 из 80
2 месяца назад
Бригада AtmaBuilding
На сайте уже 6 лет
Был 2 часа назад
Рейтинг: 61 из 80
2 месяца назад
Мастер Наті Наті
На сайте уже 12 лет
Был 27 минут назад
Рейтинг: 49 из 80
Авто-перевод Показать оригинал

Бажаю чудового дня!

Пропоную вам свої комплексні послуги:

+ Дизайн Інтер єра (розробка цікавих рішень, 3д візуалізація, 3д планування/зонування з розміщенням меблів, план електрики, 2д плани, підбір кольорів, меблів, світла, декору, креатива і т.д), 3д тур по приміщенням- 360 градусів панорами.

https://gnadesigngroup.org.ua/ua/interier.html

+ розробку зонування/планування та проектування благоустрою території навколо, Ландшафтного дизайна, вхідної/в їзної групи, різноманітних зон відпочинку, підбір рослин та тротуарної плитки/доріжок, моделювання індивідуальних локацій, 3д візуалізацію цього, 2д плани, освітлення (нічна версія), 3д відео-ролик, 360 градусів панорами.

https://gnadesigngroup.org.ua/ua/terytoriia.html

* При замовленні однієї послуги буде знижка на наступну.

Люблю Творити Індивідуальні, Оригінальні, Креативні рішення. Можу розробити Цікавий дизайн для вас і для тих, з ким ви співпрацюєте, знайомих. Дизайн як для будинків та квартир так і для інших споруд/комерції, бізнесу, приміщень, офісів, закладів, кафе/ресторанів і т.д.

Споруди/Дизайн Фасаду, Ландшафт, Інтер єри, цікаві Інвест. проекти, оригінальні рішення, направлення діяльності, креативні ідеї, арт-об єкти, відео-ролики, благоустрій, творчість, інфо, новини і т.д. див. на моєму сайті:

https://GNAdesigngroup.org.ua

Зв язок: (096) xxx xxxx

2 месяца назад
Мастер Олександр
На сайте уже год
Был 4 часа назад
Рейтинг: 35 из 80
Авто-перевод Показать оригинал

Вітаю, зведений (097) xxx xxxx радий буду співпраці.

2 месяца назад
Компания Але-Ста
На сайте уже 6 лет
Был 2 часа назад
2 месяца назад
Мастер Сергей Егоров
На сайте уже год
Был 6 часов назад
Рейтинг: 33 из 80

Звоните .обговорим .сделаем.

2 месяца назад
Бригада Klinker hause
На сайте уже 10 лет
Был 3 часа назад
Рейтинг: 38 из 80
Авто-перевод Показать оригинал

Професійне облицювання фасадів клінкерною плиткою. Фото робіт в профілі. Не посередник.

Отредактировано 10.02.2026, 20:44:44
2 месяца назад
Бригада OllMax
На сайте уже 3 месяца
Был месяц назад
Рейтинг: 23 из 80
Авто-перевод Показать оригинал

До виконання завдання готові.

Можна специфікацію поглянути?

2 месяца назад
Бригада С.м.м
На сайте уже 2 года
Был 11 часов назад
Рейтинг: 30 из 80
Авто-перевод Показать оригинал

Мої вітання можемо виконати ваш замовлення від а дя за доступними цінами Микола Миколайович (098) xxx xxxx

2 месяца назад
Мастер Фасади Будівництво
На сайте уже 6 лет
Был 5 часов назад
Рейтинг: 37 из 80
Авто-перевод Показать оригинал

Скільки майстрів і жоден не сказав.

Шановний замовнику, неможна під клінкеру плитку утеплювати мінватою! Потрібен пінопласт мінімум EPS 80 і антивандальна сітка. Мінвата має пористу структуру, клінкер має велику вагу, буде тягнути волокна мінвати донизу. Якщо цікавить якісне виконання робіт - на вайбер відпишіть (050) xxx xxxx

2 месяца назад
Бригада Будівництво від А до Я
На сайте уже 2 года
Был день назад
Рейтинг: 31 из 80
Авто-перевод Показать оригинал

Дзвоніть домовимось биигада 5 чоловік

(099) xxx xxxx

2 месяца назад
Мастер Влад
На сайте уже 8 месяцев
Был месяц назад
Рейтинг: 20 из 80
Авто-перевод Показать оригинал

Вітаю. Маємо для вас пропозицію щодо постачання клінкерної плитки.
Прямий імпорт з Європи (не посередники).
Влад - (099) xxx xxxx

месяц назад
Компания ТОВ "АВ-ВМ Груп"
На сайте уже месяц
Был 10 часов назад
месяц назад
Служба поддержки