Водопровід і каналізація (Баштанка)

№235298
Тендер закрыт
Водопровід і каналізація (Баштанка)
Авто-перевод Показать оригинал

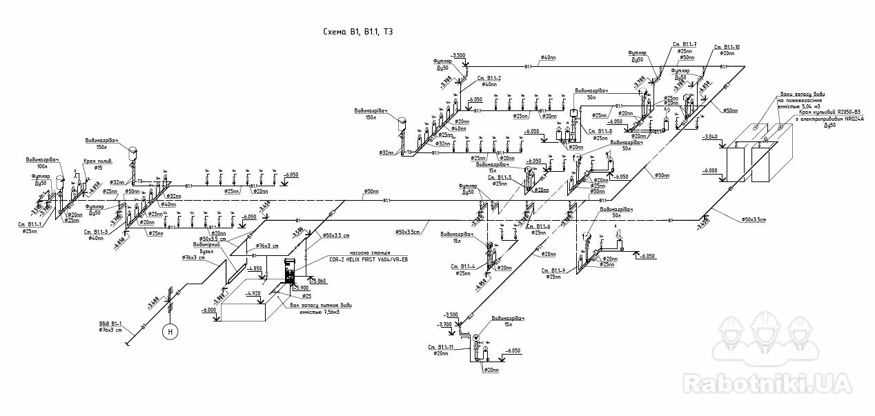
В будівлі ПРУ (нове будівництво) необхідно виконати роботи з прокладання трубопроводів водопроводу та каналізації, встановити сантехнічне обладнання:

Питний водопровід

Гаряче водопостачання

Протипожежний водопровід

Побутова каналізація

Проєкти і специфікації надамо на телеграм або ватсап.

Бюджет свыше 500 000 грн
Подрядчик (ищу на субподряд)
Можно начать 30.03.2026, Нужно закончить до 15.05.2026
Отредактировано 24.03.2026, 17:23:31

Віктор
Зарегистрирован 5 месяцев назад
Был на сайте 16 часов назад
Баштанка (Николаевская область)
Предложения по тендеру (1)
Компания Виталий Силенко
На сайте уже 2 месяца
Был 5 часов назад
Рейтинг: 32 из 80
месяц назад
Служба поддержки