Зашить батареи гипсокартоном 4 стены (Киев)

№228006
Тендер закрыт
Зашить батареи гипсокартоном 4 стены (Киев)

Необходимо смонтировать фальш стены чтобы закрыть комуникации отопления и обсутроить короб вокруг батареи на 4 стенах
сделать закладные под монтаж натяжного потолка
2 стены с окнами
2 стены с окном и выходом на балкон

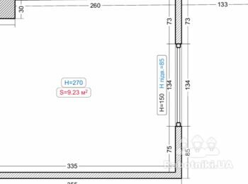
размеры стен на фото можно увидеть, высота потолка примерно

профиль кнауф 50 уже закуплен
гипсокартон кнауф закуплен
саморезы
просекатель
все есть

жду предожения цены

Бюджет до 22 000 грн
Владелец
Можно начать 03.10.2025, Нужно закончить до 08.10.2025
Отредактировано 03.10.2025, 13:30:47

дмитрий
Зарегистрирован 10 месяцев назад
Был на сайте 7 дней назад
Киев (Киевская область)
Служба поддержки