Комплексный монтаж внутренних коммуникаций в доме (Киев)

№56105
Тендер закрыт
Комплексный монтаж внутренних коммуникаций в доме (Киев)

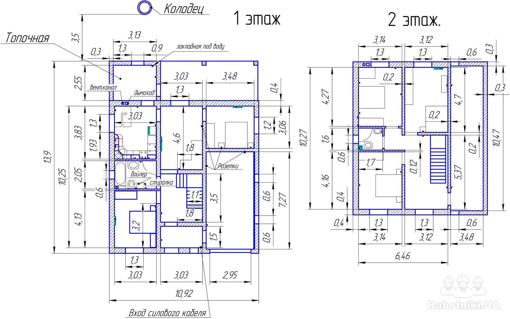
Необходимо произвести комплексный монтаж внутренних коммуникаций в 2-х эт. доме (160м2) - Васильковский р-н с.Багрын: 1 - ввод и разводка воды; насосная станция 2 - монтаж заземления 3 - разводка электричества (силовой кабель заведен - 380) 4 - разводка отопления: 1 эт.- теплый пол; 2 эт.- радиаторы; 5 - заливка стяжки на 1 этаже.

Отопление предполагаю от электро и твердотопливного котла, которые тоже нужно установить; горячяя вода - бойлер в с/у на 1эт.

Планировки этажей с размерами прилагается. Сергей.

Бюджет до 50 000 грн
Можно начать 07.04.2018

Serg
Зарегистрирован 9 лет назад
Был на сайте 5 лет назад
Киев (Киевская область)
Предложения по тендеру (21)
Компания Підрядник
На сайте уже 8 лет
Был час назад
Рейтинг: 47 из 80
8 лет назад
Мастер Игорь Зарудный
На сайте уже 12 лет
Был 3 месяца назад

Здравствуйте. Выполню ваш заказ. Сам электрик, есть хорошая бригада сантехников - теплотехников. Стоимость работ после определения объема. Буду рад сотрудничеству. (050) xxx xxxx С ув. Игорь.

8 лет назад
Компания Blessbud JC
На сайте уже 9 лет
Был день назад
8 лет назад
Мастер Виталий Птуха
На сайте уже 12 лет
Был 11 месяцев назад
Бригада Сантех-Монтаж
На сайте уже 10 лет
Был 5 лет назад
Бригада Сантехмонтажник
На сайте уже 8 лет
Был 2 года назад
Рейтинг: 33 из 80

Добрый день. Мы выполняем все виды сантехнических работ. Наши расценки: -точка ГВС+ХВС+канализация от 500 грн -разводка труб водоснабжение, канализация, отопление от 25 грн/м -монтаж и подключение радиаторов отопления от 700 грн -штробление от 50 грн/м -установка сантехприборов от 400грн -магистрали отопления от 25грн/м -монтаж и подключение коллекторов от 600грн -монтаж теплых полов (утеплитель,отражатель,сетка,монтаж труб) от 200 грн/м2 -монтаж и подключение электрокотла от 1500 грн -монтаж и подключение твердотопливного котла от 2500 грн -монтаж и подключение насосной станции от 1000 грн по предварительной договоренности просчитаем полную смету. С уважением, Сергей. (067) xxx xxxx

8 лет назад
Компания ТОВ Атриум Украина
На сайте уже 8 лет
Был 7 лет назад
Рейтинг: 0 из 80

Добрый вечер Звоните нам : (050) xxx xxxx Александр

8 лет назад
Мастер Сергей Волотовский
На сайте уже 9 лет
Был 2 года назад

Здравствуйте! Можем в комплексе выполнить все работы. Заземление по нормам, из нержавейки 300$, оцинковки - 200$, сопротивление контура менее 4 Ом, замеры и т.д. Монтаж провода 10 грн/м.п. Подрозетник в кирпиче 60 грн/шт Автомат 6 грн/шт По электрике (098) xxx xxxx Сергей По сантехнике (098) xxx xxxx Игорь

8 лет назад
Бригада буд-ком стиль
На сайте уже 10 лет
Был 3 года назад
Бригада Termo Plus
На сайте уже 10 лет
Был месяц назад
Рейтинг: 36 из 80

Водопровод 150 грн / точка Канализация 150 грн / точка Отопление 450 грн / точка Тёплый пол 75 грн / м2 Насосна станция 800 грн Колектор ТП 500 грн Топчна 3500 грн Проводка 10 грн /м.п. Подризетник 40 грн Розпред. коробка 100 грн

8 лет назад
Бригада Строй-групп ЛТД
На сайте уже 8 лет
Был 5 лет назад

Сергей, как на счёт вентиляции, кондиционирования?

8 лет назад
Бригада Володимир Голяченко
На сайте уже 10 лет
Был 2 месяца назад
Бригада Богдан Шляхетко
На сайте уже 11 лет
Был 4 года назад

Добрый вечер. Предлагаю услуги сантехников и электриков. Весь комплекс работ. Качество на высшем уровне. Звоните.

8 лет назад
Бригада Электромастер
На сайте уже 9 лет
Был 12 часов назад
Мастер ТОВ "КОМПАНІЯ ЕЛЕКТРОМОНТАЖ ПЛЮС"
На сайте уже 9 лет
Был 10 месяцев назад

ООО `Компания Электромонтаж Плюс` Специализируется на проведении широкого спектра электромонтажных работ. Обращаемся к Вам с предложением о сотрудничестве.

8 лет назад
Бригада десна
На сайте уже 12 лет
Был 2 года назад
Рейтинг: 29 из 80

Можем сделать. Наш профиль. Бригада с инструментом. Как связаться с Вами ?

8 лет назад
Бригада Электромонтажник
На сайте уже 10 лет
Был 2 дня назад

Электромонтажные работы под ключ 65 000 грн. elektromontage.com.ua

8 лет назад
Бригада десна
На сайте уже 12 лет
Был 2 года назад
Рейтинг: 29 из 80

Можем сделать. Сейчас свободны. Бригада с инструментом. Как связатся с Вами ?

8 лет назад
Компания ТОВ ВІП БІЛДІНГ
На сайте уже 8 лет
Был 7 лет назад
Бригада Трио строй
На сайте уже 10 лет
Был 7 лет назад
8 лет назад
Бригада Трио строй
На сайте уже 10 лет
Был 7 лет назад
8 лет назад
Служба поддержки