УСТАНОВИТЬ 2 ЗЕРКАЛА. (Киев)

№57317
Тендер закрыт
УСТАНОВИТЬ 2 ЗЕРКАЛА. (Киев)

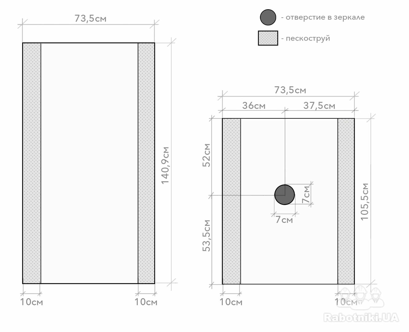
Надо установить 2 зеркала. В пятницу 27. Нужны мастера у которых есть опыт и нужные инструменты. Размер зеркал: 1-ого - 1409 на 735 2-ого - 1055 на 735

Бюджет до 2 000 грн
Можно начать 24.04.2018

Алексей
Зарегистрирован 7 лет назад
Был на сайте 4 года назад
Киев (Киевская область)
Предложения по тендеру (3)
Бригада универсальная бригада Master Klass
На сайте уже 11 лет
Был 14 часов назад
Рейтинг: 47 из 80
7 лет назад
Мастер Іван Колісник
На сайте уже 7 лет
Был 11 дней назад
Рейтинг: 34 из 80

доброго дня. мій телефон (096) xxx xxxx Іван зателефонуйте обговоримо диталі по монтажу зеркал .

7 лет назад
Компания тов компания Н.А.С.
На сайте уже 10 лет
Был 4 дня назад
Рейтинг: 30 из 80

Готовы смонтировать

7 лет назад
Служба поддержки