Перестенки с газоблока (Киев)

№56293
Тендер закрыт
Перестенки с газоблока (Киев)

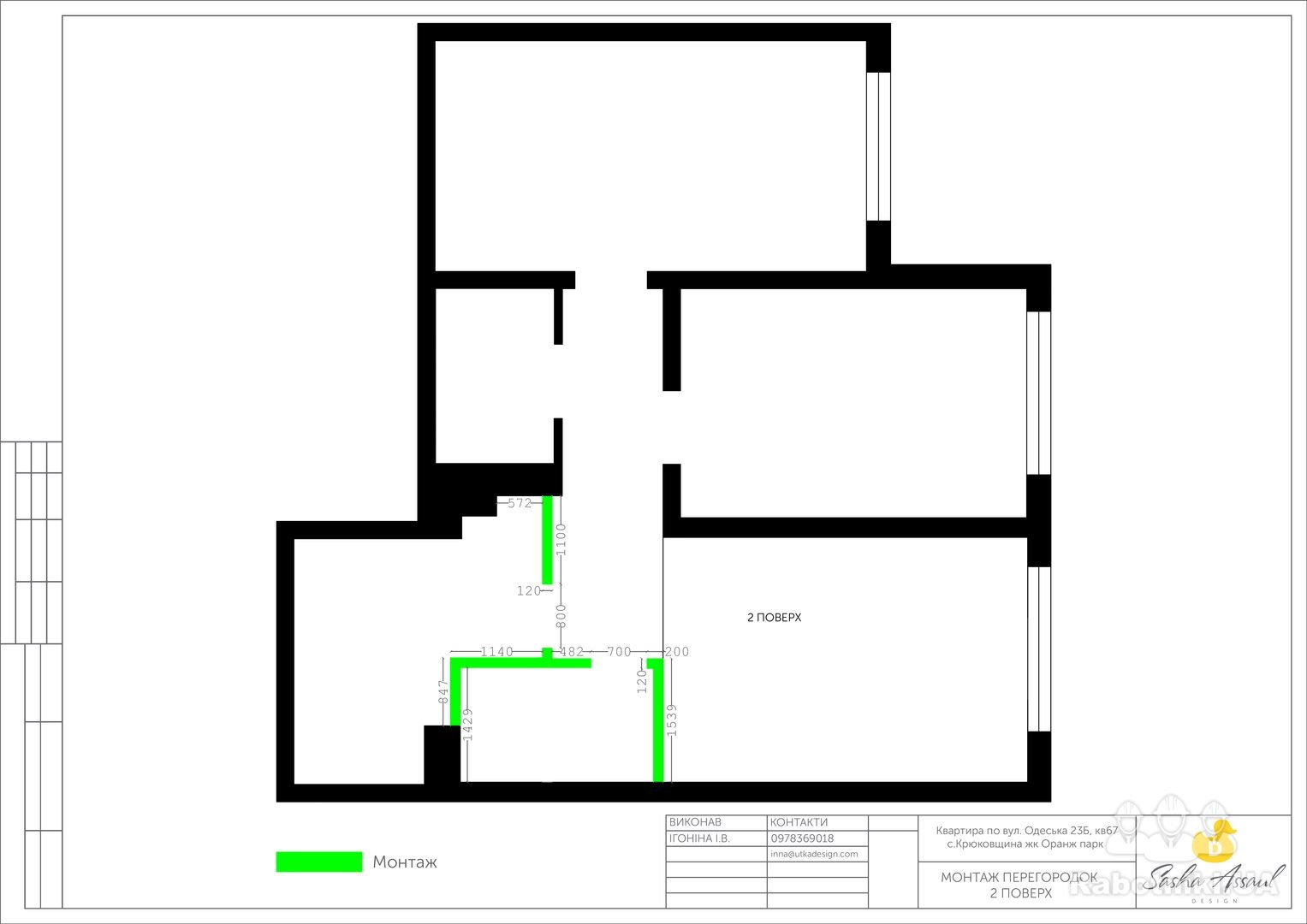
Необходимо сделать перестенки с газоблока согласно файла во вложении.

Бюджет до 2 000 грн
Можно начать 11.04.2018

Владимир
Зарегистрирован 10 лет назад
Был на сайте 5 лет назад
Киев (Киевская область)
Предложения по тендеру (5)
Бригада Качественный ремонт и отделка
На сайте уже 7 лет
Был 6 лет назад
7 лет назад
Мастер Михаил Дворник
На сайте уже 9 лет
Был 18 часов назад
Бригада Хаймик
На сайте уже 7 лет
Был 10 часов назад
Рейтинг: 35 из 80

доброго дня. 430грн м 3

7 лет назад
Бригада Хорошее качество
На сайте уже 7 лет
Был 7 лет назад
Рейтинг: 0 из 80

Здравствуйте...меня зовут Игорь Стрияк...мы занимаемся всеми видами строительно-отделочных работ,включая электрификационные и сантехнические работы. Наша специализация – ремонт квартир,домов под ключ,коих в Киеве мы уже сделали под сотню. Работаем в сфере внутренней отделки уже более 13 лет,гарантируем максимально возможное качество работ,оперативность,порядочность и аккуратность.В наличии весь необходимый инструмент. При желании можем показать квартиры в Киеве,где мы работали раньше..можно будет оценить качество работ воочию,а также пообщатся с нашими предыдущими заказчиками на предмет наших как профессиональных,так и человеческих качеств. Сейчас есть квартиры в ЖК Чайка и ЖК Хофман Хаус. Также можно посмотреть квартиру в ЖК Демеевский и одну квартиру на Нивках…Все перечисленные обьекты мы делали под ключ весной-летом…посмотреть на качество нашей работы можем практически в любое время. Имеем богатый опыт работ по дизайн-проэктам. По расценкам: -маячная штукатурка стен 130 грн/м2 -кладка перестенков с газоблока 150 грн/м2 -монтаж подвесных прямых одноуровневых гипсокартонных потолков 150 грн/м2 -шпаклевка потолков 100 грн/м2 -шпаклевка стен 100 грн/м2 -покраска потолков 50 грн/м2,стен 50 грн/м2 -укладка плитки на стены 200 грн/м2,на пол 200 грн/м2 -поклейка обоев 65 грн/м2 -укладка ламината 65 грн/м2 -монтаж припотолочного багета,приполового плинтуса (пластик) 40 грн/м.п. -точка электрики 130 грн/точка -точка разводки воды 400 грн -точка канализации 200 грн Выезд к вам на обьект,обмер и просчет детальной поэтапной сметы работ - бесплатно.Попутно составим Вам перечень и стоимость необходимого строительного материала. Если заинтересовало - (096) xxx xxxx Сайт – http://porastroit.com.ua

7 лет назад
Мастер Саша Доладний
На сайте уже 10 лет
Был 11 месяцев назад
Рейтинг: 30 из 80

Можна виконати дану роботу. Ціна улаштування перегородки - 135 грн/м2. Цікавить район розташування. Дзвоніть завчасно.

7 лет назад
Служба поддержки