Ремонт однокомнатной квартиры (Киев)

№56625
Тендер закрыт
Ремонт однокомнатной квартиры (Киев)

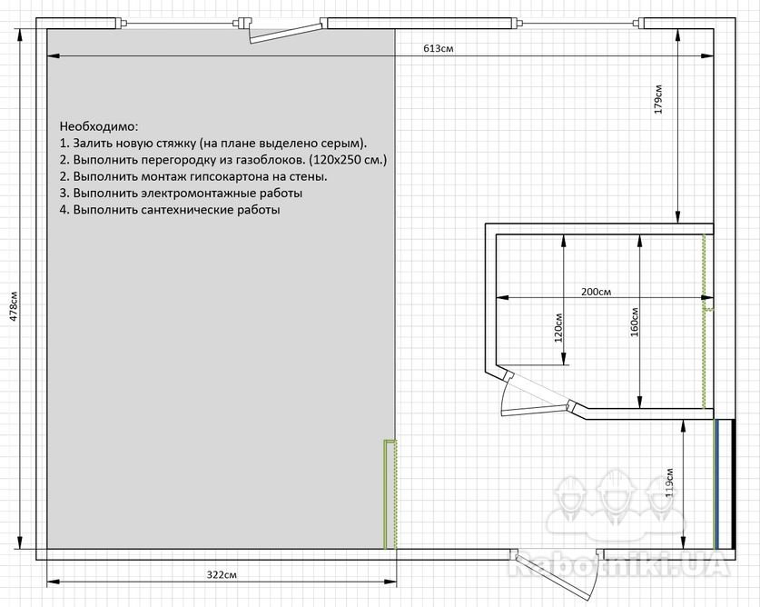
Однокомнатная квартира, 3 этаж 5-этажного дома, Ветряные горы. Площадь около 28 м2. Необходимо залить новую стяжку пола в комнате (15 м2), выполнить перегородку из газоблоков (120х250 см) Также необходимо выполнить электромонтажные и сантехнические работы, монтаж гипсокартона на стены.

Бюджет до 50 000 грн
Можно начать 16.04.2018

Олег
Зарегистрирован 9 лет назад
Был на сайте 8 лет назад
Киев (Киевская область)
Предложения по тендеру (23)
Бригада СТАНДАРТ-ПРОЕКТ
На сайте уже 8 лет
Был месяц назад
Рейтинг: 37 из 80
8 лет назад
Бригада Unicore Building
На сайте уже 9 лет
Был год назад
Рейтинг: 32 из 80
8 лет назад
Компания РемСтройСервисПлюс
На сайте уже 11 лет
Был 7 лет назад
Бригада Александр 73
На сайте уже 12 лет
Был месяц назад
Мастер Сергей Николаевич Лисовец
На сайте уже 8 лет
Был 5 лет назад
Рейтинг: 25 из 80

Здравствуйте, я профессиональный сантехник, выполняю любой вид работ, любыми материалами. Гарантия 5 лет. Договор. Цены адекватные.

8 лет назад
Бригада Сантехмонтажник
На сайте уже 8 лет
Был 2 года назад
Рейтинг: 33 из 80

Добрый день. Выполняем все виды сантехработ. Оперативно и качественно. Наши расценки: -устройство точки ХВС+ГВС+канализация от 500 грн -укладка труб водоснабжения от 30 грн/м -укладка труб канализации от 40 грн/м -штробление от 50 грн/м -монтаж и подключение радиатора 800 грн С уважением, Сергей. 067438492

8 лет назад
Бригада АНГСТРОЙ
На сайте уже 8 лет
Был 7 лет назад
8 лет назад
Бригада КиБ строй
На сайте уже 9 лет
Был 7 лет назад
Рейтинг: 0 из 80

Електрика 150 гр.т Стяжка 60 гр Хвс,гвс 200 гр

8 лет назад
Бригада СК Модуль
На сайте уже 10 лет
Был 3 месяца назад
Бригада Квадратный м
На сайте уже 8 лет
Был месяц назад

Здравствуй,набирайте договоримся.

8 лет назад
Компания ТОВ "БК ПЛЮ-ЦАР"
На сайте уже 10 лет
Был 2 года назад
Мастер Бригада Сантехмонтаж
На сайте уже 8 лет
Был 7 лет назад
Рейтинг: 0 из 80

Стоимость работ от 1200грн м² по полу.Звоните (099) xxx xxxx.

8 лет назад
Мастер василий гулаков
На сайте уже 12 лет
Был 4 дня назад
Рейтинг: 35 из 80

Готов выполнить Ваш заказ. (кроме электрики и сантехники)

8 лет назад
Бригада Класний ремонт
На сайте уже 8 лет
Был 7 лет назад
Рейтинг: 0 из 80

добрий вечір,готови розглянути ваш заказ і зробити по доступних цінах для вас (093) xxx xxxx

8 лет назад
Мастер Михаил Паркетчик
На сайте уже 10 лет
Был 5 лет назад
Рейтинг: 32 из 80

Паркетчик-профессионал предлагает весь спектр паркетных работ любого уровня сложности. Паркет штучка паркетная доска массив ламинат плинтус порожки пробка вагонка фанера... Есть весь необходимый инструмент. Доверьте пол специалисту!

8 лет назад
Мастер Виталий Птуха
На сайте уже 12 лет
Был 11 месяцев назад
Бригада мастер Сергей Сергеевич
На сайте уже 8 лет
Был 7 лет назад
Бригада десна
На сайте уже 12 лет
Был 2 года назад
Рейтинг: 29 из 80

Можем сделать. Куда позвонить Вам ? Или меня набирите. Опыт 5 лет. Инструмент свой.

8 лет назад
Бригада Стройплощадка
На сайте уже 9 лет
Был 2 года назад
Рейтинг: 27 из 80

Доставка материалов. Работы: стяжка- 60 грн/м2, кладка газоблок- 12 грн/шт, электрика- 60 грн/т, гипсокартон- 60 грн/м2, плитка- 120 грн/м2, обои- 30 грн/м2, шпаклевка- 40 грн/м2 и т.д.

8 лет назад
Бригада УСБ
На сайте уже 11 лет
Был 7 лет назад
Рейтинг: 0 из 80

Бригада с инструментом и опытом работ 5 лет. Выезд на объект бесплатно. Звоните (050) xxx xxxx или (050) xxx xxxx

8 лет назад
Мастер Оксана Врублевская
На сайте уже 8 лет
Был 7 лет назад
Рейтинг: 0 из 80
Стоимость работ: 100

Теплый пол. Антиобледенение. Снеготаяние. Молниезащита.Заземление.

Предлагаем электрокабельные системы отопления: нагревательный кабель, нагревательный мат, инфракрасная пленка - NEXANS, ProfiTherm, ProfiTherm EKO, ProfiTherm Slims , GrayHot, DEVI, Thermopads. - теплый пол (под стяжку, под плитку, под ламинат). - система снеготаяния и антиобледенения (обогрев почвы, желобов, водостоков, ливнеприемников, тротуаров, входных лестниц, банкоматов уличного исполнения). - подогрев трубопроводов, резервуаров. Терморегуляторы ( механические, программируемые, цифровые, сенсорные) .

Системы молниезащиты и заземления. (OBO BETTERMANN , Schirtec). Устройства защиты от импульсного перенапряжения токов и молний (SALTEK). Проводники: пруток-катанка (алюминиевая, оцинкованная сталь, медная), полоса. Молниеприемники: молниеприемник с держателем, молниеприемные стержни и мачты, соединитель проводника для молниеприемника, настенный держатель для молниеприемных мачт, зажимный крепеж и другое. Заземлители : комплект стержневого вертикального заземлителя, шина уравнивания потенциалов, соединительная муфта, точка заземления, антикоррозионная лента, и другое. Держатели. Разрядники. Соединители. Модульная аппаратура – контакторы, реле, термостаты, автоматические выключатели, дифавтоматы (Legrand. Hager, Schneider). Щиты распределительные. Антипотоп - система защиты от протечек и залива квартир "Аквасторож"

По желанию заказчика – полный комплекс электромонтажных услуг. Звоните, цены договорные , существует гибкая система скидок ! (067) xxx xxxx, (067) xxx xxxx Оксана (ООО «Дават»).

8 лет назад
Компания ReZulTat
На сайте уже 8 лет
Был 2 года назад
Компания NOVA-BUD
На сайте уже 9 лет
Был 5 лет назад
8 лет назад
Служба поддержки