Зварити колони (Киев)

№235175
Тендер закрыт
Зварити колони (Киев)
Авто-перевод Показать оригинал

Вітаю

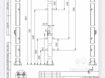
Потрібно зварити 8 таких колон

Та 8 дещо складніших

Цікавить ціна за колону

Всі заготовки вже нарізано

Святопетрівське

Бюджет до 5 000 грн
Подрядчик (ищу на субподряд)
Можно начать 06.02.2026
Отредактировано 06.02.2026, 17:24:04

Владимир Галицький
Зарегистрирован 4 года назад
Был на сайте день назад
Киев (Киевская область)
Предложения по тендеру (7)
Бригада Торбуд
На сайте уже год
Был 3 часа назад
Рейтинг: 38 из 80

Доброго вечора телефонуйте обговоремо

2 месяца назад
Мастер Олександр
На сайте уже год
Был 12 часов назад
Рейтинг: 35 из 80
Авто-перевод Показать оригинал

Вітаю, звертайтесь маю майстрів можуть виготовити (097) xxx xxxx

2 месяца назад
Бригада Дмитро Льошін
На сайте уже 3 года
Был 15 часов назад
Рейтинг: 42 из 80
2 месяца назад
Бригада Кузня Кеназ
На сайте уже 6 лет
Был 13 часов назад
Рейтинг: 38 из 80
Авто-перевод Показать оригинал
Предоплата: С частичной предоплатой

Доброго дня.

Можемо приступити до роботи.

Потрібна більш детальніша інформація по колонам, товщини метала, та інше.

Можемо обговорити по телефону, або на буд. майданчику.

т.(098) xxx xxxx Сергій

Кузня Кеназ

2 месяца назад
Бригада МонтМетал
На сайте уже 3 месяца
Был 2 месяца назад
Рейтинг: 20 из 80
Авто-перевод Показать оригинал

Доброго вечора. Яка загальна вага металу? І його потрібно виготовити і змонтувати?

2 месяца назад
Бригада ТОВ Підгруп
На сайте уже год
Был 27 дней назад
Рейтинг: 25 из 80

Набирайте обсудим

Скачать файлы:
2 месяца назад
Бригада OlvStar
На сайте уже 7 лет
Был месяц назад

Здравствуйте, нужно сварить или сварить и смонтировать? В любом случае мне интересно, набирайте, обговорим детали. С уважением, Олег((063) xxx xxxx)

2 месяца назад
Служба поддержки