Зварювальні роботи (Кременчуг)

№235499
Тендер закрыт
Зварювальні роботи (Кременчуг)
Авто-перевод Показать оригинал

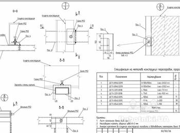
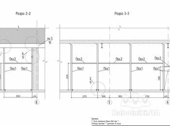
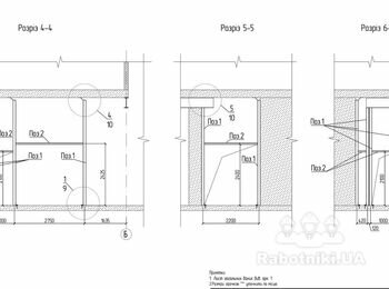
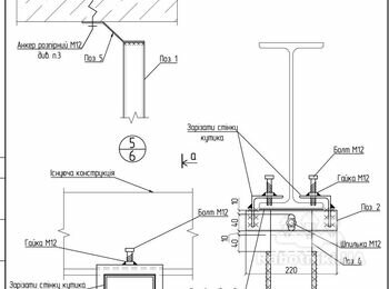
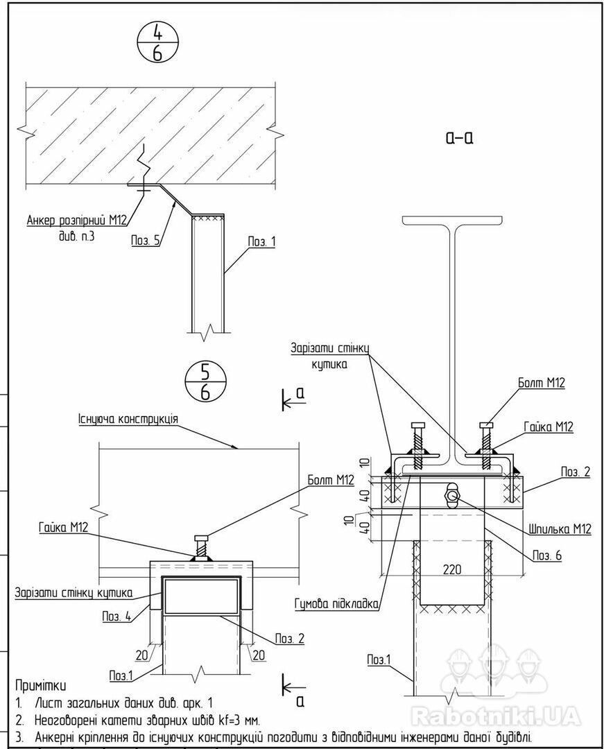
Потрібно для укріплення конструкції зварити каркас в магазині, креслення пропоную, чекаю від вас попередньої ціни та термінів виконання.

Бюджет до 200 000 грн
Подрядчик (ищу на субподряд)
Можно начать 18.02.2026
Отредактировано 18.02.2026, 09:14:12

Спец Монтаж
Зарегистрирован 6 лет назад
Был на сайте 8 дней назад
Кременчуг (Полтавская область)
Предложения по тендеру (2)
Компания Патока Сергій
На сайте уже год
Был 18 часов назад
Рейтинг: 28 из 80
Авто-перевод Показать оригинал

Доброго дня. Ми будівельна компанія , займаємося бетонними роботами. Виготовлення монтаж металоконструкцій. По всій Україні. Працюем з ПДВ. Якщо цікавить то як з вами зв язатися?

месяц назад
Мастер Володимир Білоцерківець
На сайте уже 2 года
Был 3 дня назад
Рейтинг: 36 из 80
Авто-перевод Показать оригинал

напишіть в вайбер (050) xxx xxxx обговоримо проект, суму, та співпрацю.

месяц назад
Служба поддержки