Зварювальні роботи. Пандус (Киев)

№232191
Тендер закрыт
Зварювальні роботи. Пандус (Киев)
Авто-перевод Показать оригинал

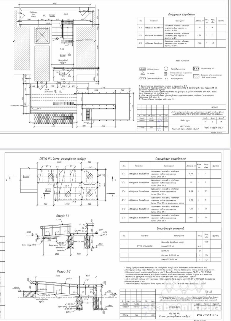
Треба зварити пандус для інвалідів в підʼїзді житлового будинку. 6 шт. 40000 за один виріб. Приблизно 8 м довжина. Дарницький район. Готівка

Бюджет до 300 000 грн
Подрядчик (ищу на субподряд)
Можно начать 28.11.2025, Нужно закончить до 31.01.2026
Отредактировано 01.12.2025, 15:29:04

Будтайм
Зарегистрирован 10 лет назад
Был на сайте 4 месяца назад
Киев (Киевская область)
Предложения по тендеру (5)
Мастер Іван Ганькович
На сайте уже год
Был 4 часа назад
Рейтинг: 28 из 80
Авто-перевод Показать оригинал

Добрий вечір. Готові взятися, скиньте свій номер телефону на почту для вирішення деяких питань.

4 месяца назад
Бригада ФОП "АРТ Ю"
На сайте уже 7 лет
Был 2 месяца назад
Рейтинг: 30 из 80
Авто-перевод Показать оригинал
Можем приступить: 01.12.2025

Доброго дня.Готові взяти ваше замовлення для уточнення інформації наберіть (099) xxx xxxx Денис

4 месяца назад
Мастер Василий Мастер
На сайте уже 5 лет
Был 15 дней назад
Рейтинг: 31 из 80
Цена за выезд: 300 грн

КМД - в личку або телефонуйте, дякую . Если нет, рахуемо окремо.

4 месяца назад
Бригада Вячеслав
На сайте уже 3 года
Был 2 дня назад
Рейтинг: 37 из 80

Доброго вечора!

Звертайтеся

4 месяца назад
Бригада ProBuild
На сайте уже год
Был 2 дня назад
Рейтинг: 34 из 80
4 месяца назад
Служба поддержки