Бетонні роботи (Киев)

№238906
Тендер закрыт
Бетонні роботи (Киев)
Авто-перевод Показать оригинал

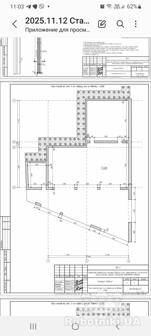
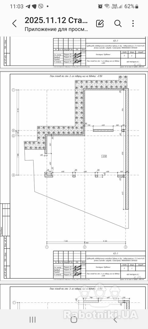
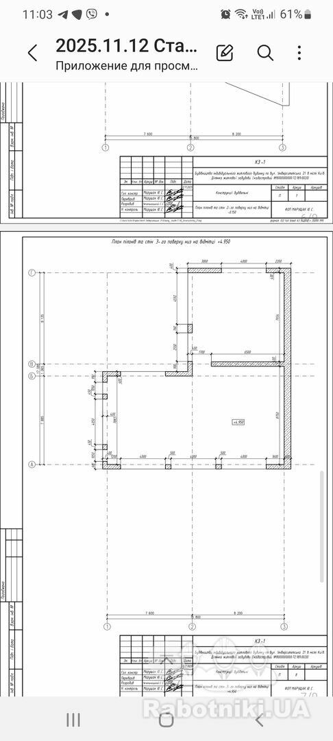
Потрібна бригада для виконання монолітних робіт:
- підпірна стіна
- ростверки
- колони
- стіни
- перекриття
Опалубка, техніка надаються.
Деталі, проект по телефону.
Бюджет 3500 грн/ м3. Також присутні інші роботи.

Бюджет до 3 500 грн
Подрядчик (ищу на субподряд)
Можно начать 11.04.2026

Василь Кирничишин
Зарегистрирован 8 лет назад
Был на сайте 17 минут назад
Киев (Киевская область)
Предложения по тендеру (3)
Бригада stroim--vse
На сайте уже 8 лет
Сейчас на сайте
Рейтинг: 50 из 80
месяц назад
Бригада будкомстиль
На сайте уже 5 лет
Был 39 минут назад
Рейтинг: 33 из 80
Авто-перевод Показать оригинал
Количество человек: 5

підпірна стіна-5500грн м3.
- ростверки-5000грн м3.
- колони-2200грн м/п.
- стіни-6500грн м3.

Перекрытия -1200грн М2.

Отредактировано 11.04.2026, 15:59:07
месяц назад
Мастер Андрій
На сайте уже год
Был 2 часа назад
Рейтинг: 25 из 80
Авто-перевод Показать оригинал

Зателефонуйте мені

(063) xxx xxxx

месяц назад
Служба поддержки