Будівництво каркасу 3-пов. будинку (Буча)

№230205
Тендер открытТендер открыт для предложений
Будівництво каркасу 3-пов. будинку (Буча)
Авто-перевод Показать оригинал

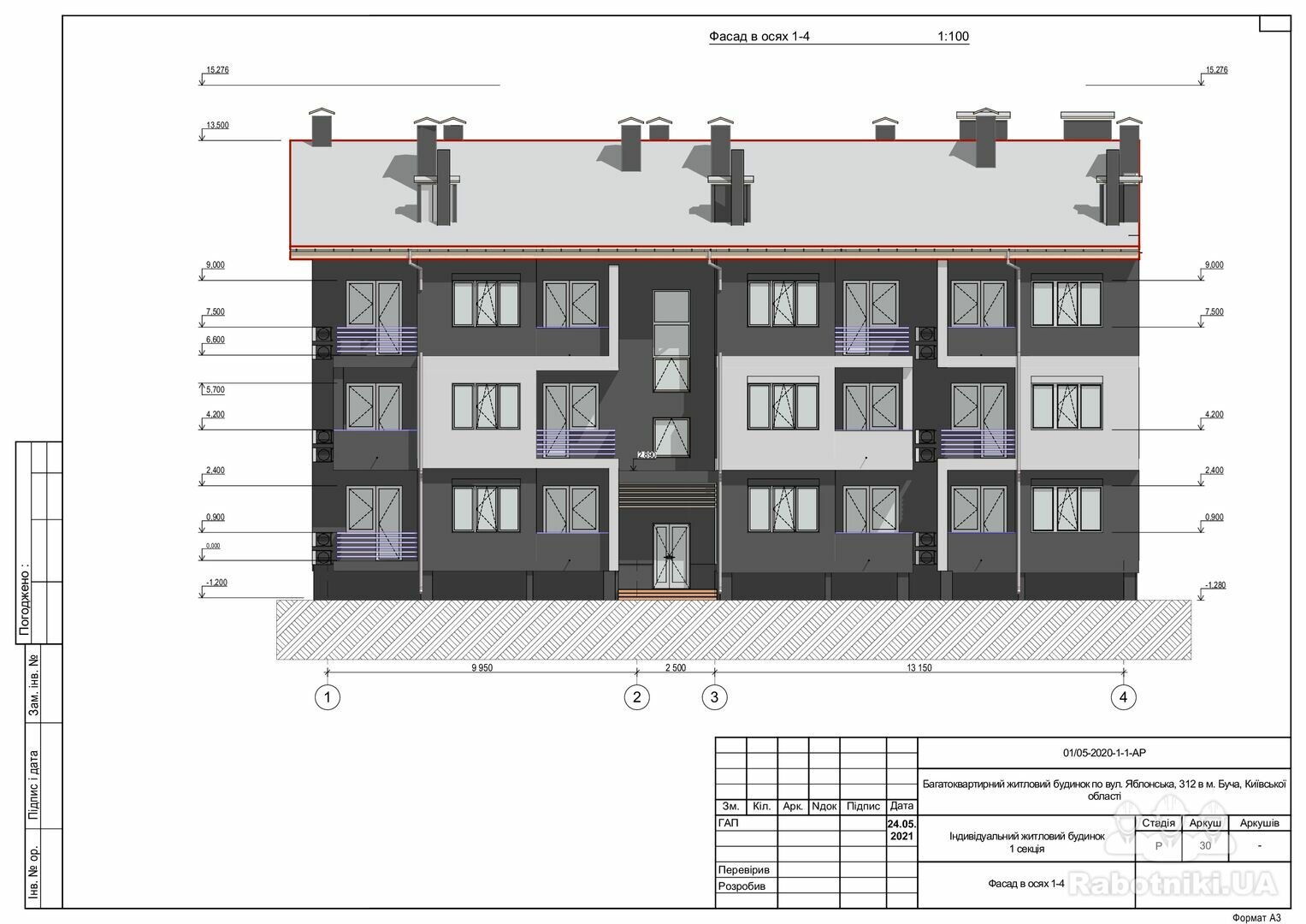
Потрібна бригада будівельників для будівництва каркасу 3 поверхового будинку в місті Буча, Київської обл.

Потрібно виконати наступні види робіт:

  1. Кладка стін з газбетону з армуванням стрижнями арматури
  2. Монтаж плит перекриття, сходових маршів та площадок
  3. Улаштування монолітного поясу, монолітних ділянок та ригелів

Більш детальна інформація в прикладених файлах

Бюджет свыше 500 000 грн
Подрядчик (ищу на субподряд)
Можно начать 30.10.2025

Александр
Зарегистрирован 7 лет назад
Был на сайте 3 дня назад
Буча (Киевская область)
Предложения по тендеру (4)
Мастер Наті Наті
На сайте уже 12 лет
Был 8 часов назад
Рейтинг: 50 из 80
Авто-перевод Показать оригинал

Бажаю чудового дня!

Пропоную вам свої комплексні послуги:

+ Розробку цікавого Дизайну Фасаду, Будівель (моделювання будівлі, тераси, навісу/накриття, різні варіанти дизайну фасадів, кольори, матеріали, освітлення (нічна/вечірня версії), 3д візуалізація, 3д відео-ролик, 360 град. панорами і т.д.)

https://gnadesigngroup.org.ua/ua/budivli.html

+ Дизайн Інтер єра (розробка цікавих рішень, 3д візуалізація, 3д планування/зонування з розміщенням меблів, план електрики, 2д плани, підбір кольорів, меблів, світла, декору, креатива і т.д), 3д тур по приміщенням- 360 градусів панорами.

https://gnadesigngroup.org.ua/ua/interier.html

+ розробку зонування/планування та проектування благоустрою території навколо, Ландшафтного дизайна, вхідної/в їзної групи, різноманітних зон відпочинку, підбір рослин та тротуарної плитки/доріжок, моделювання індивідуальних локацій, 3д візуалізацію цього, 2д плани, освітлення (нічна версія), 3д відео-ролик, 360 градусів панорами.

https://gnadesigngroup.org.ua/ua/terytoriia.html

* При замовленні однієї послуги буде знижка на наступну.

Люблю Творити Індивідуальні, Оригінальні, Креативні рішення. Можу розробити Цікавий дизайн для вас і для тих, з ким ви співпрацюєте, знайомих. Дизайн як для будинків та квартир так і для інших споруд/комерції, бізнесу, приміщень, офісів, закладів, кафе/ресторанів і т.д.

Споруди/Дизайн Фасаду, Ландшафт, Інтер єри, цікаві Інвест. проекти, оригінальні рішення, направлення діяльності, креативні ідеї, арт-об єкти, відео-ролики, благоустрій, творчість, інфо, новини і т.д. див. на моєму сайті:

https://GNAdesigngroup.org.ua

Зв язок: (096) xxx xxxx

5 дней назад
Компания іВАНО-ФРАНКІВСЬК ГАЛИЧБУД
На сайте уже год
Был 2 часа назад
Рейтинг: 23 из 80
Авто-перевод Показать оригинал

Готові реалізувати ваш проект. Для надання комерційної пропозиції прошу повідомити адресу електронної пошти.Дякую

Отредактировано 30.10.2025, 15:29:33
6 дней назад
Бригада СТРОИМ ВСЕ!!!
На сайте уже 5 лет
Был 17 часов назад
Рейтинг: 35 из 80
Авто-перевод Показать оригинал

Готов осудить домовитись і виконати маєм весь свій інструмен

5 дней назад
Компания ООО БК Кing Building
На сайте уже 7 лет
Был 2 часа назад
Авто-перевод Показать оригинал

Доброго .

Наша будівельна компанія готова запропонувати свої послуги.

Маємо досвід та досвідчених майстрів.

Вартість згідно вашої таблиці по роботам складає - 2365000 грн.

Якщо дана вартість вам підходить , то готові до діалогу.

Договір, терміни, порядність , відповідальність гарантуємо.

2 дня назад
Добавить предложение
Служба поддержки