Гіпсокартонні роботи (Киев)

№204167
Тендер закрыт
Гіпсокартонні роботи (Киев)
Авто-перевод Показать оригинал

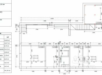
Необхідно виконати монтаж конструкцій з ГКЛ, обшити інсталяції, влаштувати фальш стіни, обшити стелю в одному з приміщень, змонтувати короб і т.п. (план та візуал робіт на фото). Деталі можемо обговорити по телефону/ на об єкті.

Бюджет до 15 000 грн
Подрядчик (ищу на субподряд)
Можно начать 20.11.2024

Антон
Зарегистрирован год назад
Был на сайте 3 дня назад
Киев (Киевская область)
Предложения по тендеру (3)
Мастер Дмитрий Баляса
На сайте уже 4 года
Был 2 дня назад
Рейтинг: 41 из 80
год назад
Мастер Юрій Олександрович
На сайте уже 12 лет
Был 2 дня назад
Рейтинг: 37 из 80
Авто-перевод Показать оригинал

Доброго дня.

Цікавить пропозиція.

год назад
Мастер Дядя Плиточник
На сайте уже год
Был 11 месяцев назад
Рейтинг: 24 из 80
Цена за выезд: 500 грн

Вам нужна поддержка вашего проекта?

Персональная консультация эксперта.

Вы получите ответ оперативно.

год назад
Служба поддержки