Гіпсокортонні роботи (Киев)

№239314
Тендер открытТендер открыт для предложений
Гіпсокортонні роботи (Киев)
Авто-перевод Показать оригинал

Потрібно зашити стіни гіпсокортоном (фальш стіна ) . Картас + гіпсокортон кнауф титан в один шар близько 100м2 + 20м.п.
Також потрібно зробти перестінки - каркас та з обох боків кнауф титан близько 20м2
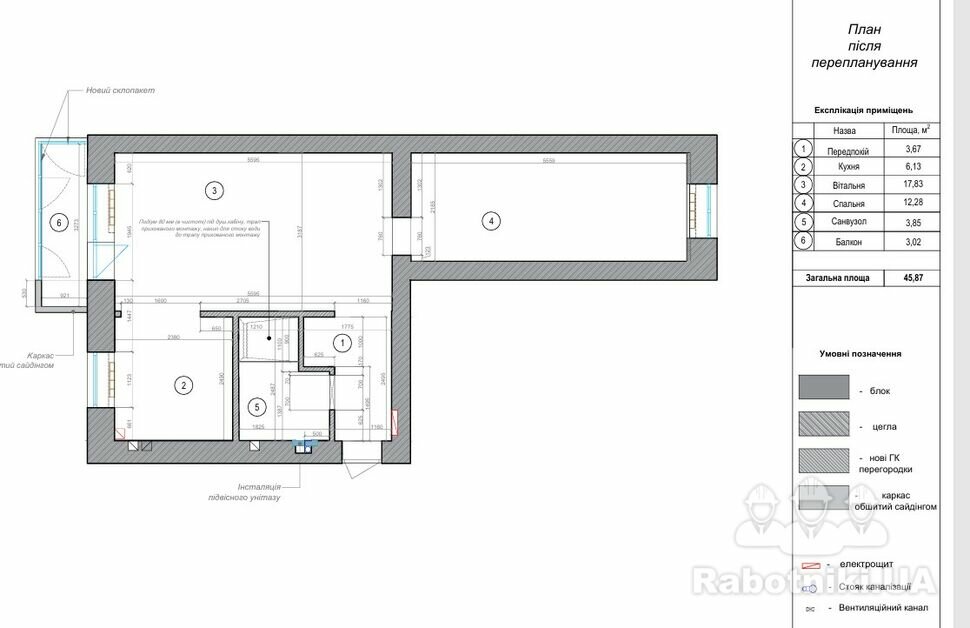
Проект присутній

Бюджет до 100 000 грн
Подрядчик (ищу на субподряд)
Можно начать 22.04.2026

KyivKey
Зарегистрирован 7 лет назад
Был на сайте 4 часа назад
Киев (Киевская область)
Добавить предложение
Служба поддержки