Моноліт, каркас. (Хмельницкий)

№183607
Тендер закрыт
Моноліт, каркас. (Хмельницкий)

Робота на березень.

Потрібно виконати бетонні роботи з будівництва 2 поверхової промислової будівлі.
Загальна площа поверху 1500 м2.

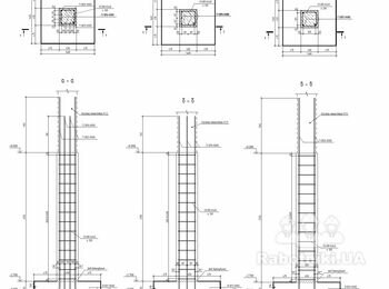
Конструкція проста, в землі стакани, плита першого поверху по грунту з елементами цокольних балок, колони січенням 400х400 до відмітки +4.50 м, і поверх них плита другого поверху з інтегрованими балками в окремих місцях. Між поверхами 1 сходова клітка.

На момент початку робіт будуть виконані котловани і підбетонка відповідно проекту. Інженерний супровід є.
Подача бетону переважно насосом, проте на обєкті постійно автокран.

Обєми наступні:
Фундаментні стакани : Арматура - 10 т; Бетон 140 м3

Плита першого поверху по грунту: Арматура - 26 т; Бетон 370 м3

Колони 1 поверху до відмітки 4.50 м: Арматура - 6 т; Бетон 60 м3

Плита 2 поверху: Арматура - 47 т; Бетон 420 м3
Сходи - 8 м.п.

По оплаті бажано вкластись в 1600 грн\м3 за готівку , разом 1.60 млн.
Або 2.20 млн по перерахунку з ПДВ.

Але пишіть свої пропозиції, бажано з опалубкою.

Бюджет свыше 500 000 грн
Подрядчик (ищу на субподряд)
Можно начать 01.03.2024

Спочатку міркуєм
Зарегистрирован 4 года назад
Был на сайте 14 часов назад
Хмельницкий (Хмельницкая область)
Предложения по тендеру (7)
Бригада ЗахідІнвестБуд
На сайте уже 3 года
Был 5 месяцев назад
Рейтинг: 22 из 80

Готові виконати ваше замовлення по договору з частковою передоплатою.(099) xxx xxxx

2 года назад
Компания ФОП Проскурняк І С
На сайте уже 2 года
Был 5 месяцев назад
Рейтинг: 18 из 80

Готові виконати ваше замовлення по договору з частковою передоплатою.

2 года назад
Бригада Shostak
На сайте уже 5 лет
Был месяц назад
Рейтинг: 35 из 80

Доброго вечора.Працюємо на моноліті 20 років.Телефонуйте (097) xxx xxxx

2 года назад
Бригада Energy
На сайте уже 12 лет
Был 9 месяцев назад
Рейтинг: 28 из 80

Вітаю, хочемо прийняти участь в Вашому тендері, можемо виконати всю роботу по бетону під ключ, скиньте будь ласка проєкт для ознайомлення і нашої пропозиції

romanklymenko1980@gmail.com

2 года назад
Бригада Лучь
На сайте уже 12 лет
Был 3 месяца назад
Рейтинг: 34 из 80

Добрий день! Я Хмельничанин. Бригадир. Прораб. Е все обладнаня.Машина.бітономішалка. ціна влаштовує . Як можна подивитись обьект на місці? Адреса? Чекаю вашого звінка,або повідомоеня адреси забудови на вацап,вайбер Мій к.т (067) xxx xxxx (вайбер,вацап)Олександр гарного дня!

2 года назад
Бригада Стронг бол
На сайте уже 2 года
Был 7 месяцев назад
Рейтинг: 24 из 80
Количество человек: 6

Добрый день можем выполнить ваш заказ

(063) xxx xxxx

Скачать файлы:
2 года назад
Бригада Все в сборе
На сайте уже 6 лет
Был 7 дней назад
Количество человек: 6

Доброго дня,є бригада можемо приступити,по ціні також домовимося,буде нижча ніж ваша,по роботам фотографії при зустрічі можу показати дзвоніть. (067) xxx xxxx

2 года назад
Служба поддержки