Опалення (тепла водяна підлога) + ГВП (Петропавловская Борщаговка)

№235706
Тендер закрыт
Опалення (тепла водяна підлога) + ГВП (Петропавловская Борщаговка)
Авто-перевод Показать оригинал

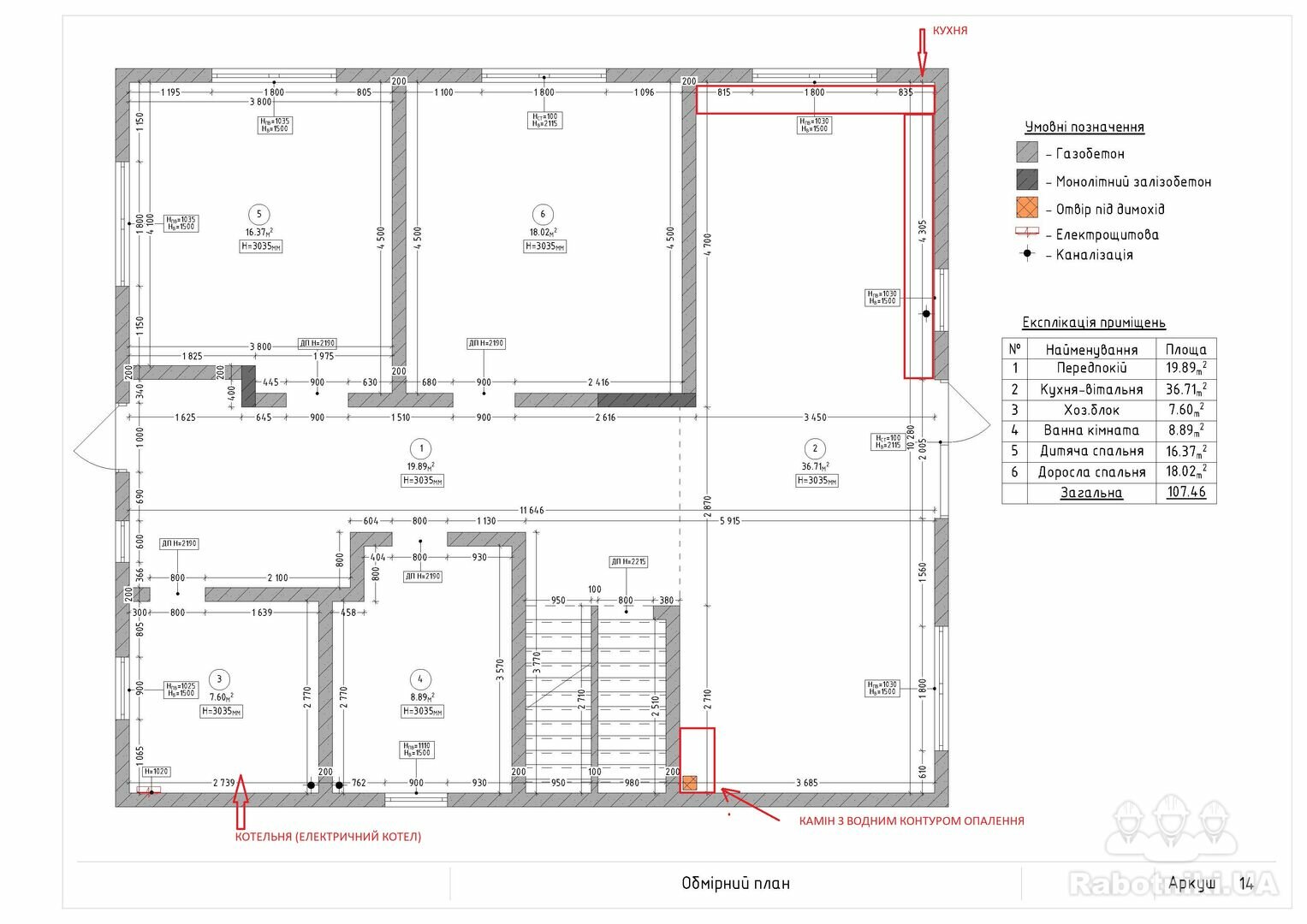
Цікавить вартість робіт опалення з матеріалом , все опалення буде водяною теплою підлогою на 1 і 2 поверхах, а також ГВП (файли додаються) оріжнтовній терміни виконання робіт квітень-травень.

Також в систему опалення потрібно приєднати камін з водяним контуром опалення.

цікавить реальна ціна, а варіант готові зробити за 100к., а як суть до діла то тут 250к - не витрачайте зайвий час. (ціни просто для прикладу...)

Бюджет до 15 000 грн
Владелец
Можно начать 02.04.2026, Нужно закончить до 30.05.2026
Отредактировано 23.02.2026, 19:37:44

Сергій
Зарегистрирован год назад
Был на сайте 15 дней назад
Петропавловская Борщаговка (Киевская область)
Предложения по тендеру (7)
Бригада Універсал-груп
На сайте уже 8 лет
Был 3 часа назад
3 месяца назад
Мастер Дмитрий Кот
На сайте уже 11 лет
Был 6 часов назад
3 месяца назад
Мастер Олександр Михайленко
На сайте уже 4 месяца
Был 16 часов назад
Рейтинг: 25 из 80
Авто-перевод Показать оригинал

Котельні . Опалення. Водопровід .

3 месяца назад
Мастер Сергій Технік
На сайте уже 5 лет
Был 5 часов назад
3 месяца назад
Мастер Виталий Бабий
На сайте уже 7 лет
Был 16 часов назад
Рейтинг: 36 из 80

Телефон (063) xxx xxxx

3 месяца назад
Мастер Неупреждённый Консультант
На сайте уже 8 лет
Был 3 часа назад
Рейтинг: 36 из 80
Предоплата: С частичной предоплатой

.

Здравствуйте.

Для снижэния количества противоречий здравому смыслу, ОБМАНА БЕЗсовестными, ОШЫБОК проэктировщиков что бывает в 99,999 % случаев, на картинках одна из многочисленных ОШЫБОК, предлагаю купить заочную ПОДРОБНУЮ консультацыю по водяному тёплому полу.

Материалы, монтаж *пирога* и подключения водяного тёплого пола, пункты нормативов и спецыализированные документы, СВОИ и других поясняющие рисунки, фотографии, видео, наглядный образец.

БЕЗ оплаты уточнения, корректировка, проверка сделанного по фотографиям, видео.

Если у Вас, близких, друзей руки мастеровые то сэкономите на работе и ГЛАВНОЕ сделаете водяной тёплый пол ЛУЧШЭ чем бывает в 99,999 % случаев.

Если на некоторые работы придётся нанимать то тех-заданием отсеете *ещё на берегу* явных дилетантов, БЕЗсовестных.

Консультацыя ОКУПИТСЯ как минимум на порядок за счет НЕ покупки НЕнужного, НЕ переплаты ПОСТОЯННО за покупные энергоносители. Будет ИСКЛЮЧЕНА вероятность дискомфорта и АВАРИИ могущей стоить НА ПОРЯДКИ дорожэ стоимости консультацыи.

.

Буду ПОЛЕЗЕН ПОДРОБНОЙ консультацыей в другой инженерии в которой ХОРОШО разбираюсь, при сопутствующих условиях и если можно неспешно не объёмной работой:

Резервное электроснабжение ИБП, СЭС. Обеспечивающее работу топливного котла, холодильника СУЩЕСТВЕННО дольшэ при той жэ ёмкости аккумулятора чем бывает в 99,999...% случаев.

Снижение затрат на отопление, ГВС.

Электрика квартир, одноквартирных домов на ВЫСОКОМ уровне обеспечения БЕЗопасности.

Проверка выполненной электрики квартир, одноквартирных домов на наличие НЕ выполненных, НАРУШЭННЫХ нормативов, противоречий здравому смыслу.

Защита от ПОЖАРА по одному из пунктов нормативов США, ОБЯЗАТЕЛЬНАЯ в США для спальных, детских комнат.

Мелкий, при сопутствующих условиях средний, ремонт электрики бытовых электроприборов, автотранспорта, топливных электрогенераторов.

Многое другое.

Скачать файлы:
Отредактировано 23.02.2026, 08:37:43
3 месяца назад
Компания RICH COMPANY
На сайте уже 12 лет
Был 6 часов назад
Рейтинг: 40 из 80
Авто-перевод Показать оригинал

Доброго дня.

Можете надіслати креслення та всю необхідну інформацію ?

0-9-9-7-6-9-9-5-7-0 Дмитро

Весь необхідний інструмент є

Отредактировано 23.02.2026, 17:03:56
3 месяца назад
Служба поддержки