Потрібно виконати електромонтаж в магазині АТБ (Летичев)

№238275
Тендер закрыт
Потрібно виконати електромонтаж в магазині АТБ (Летичев)
Авто-перевод Показать оригинал

Потрібно виконати електромонтаж в магазині АТБ (новобудова)
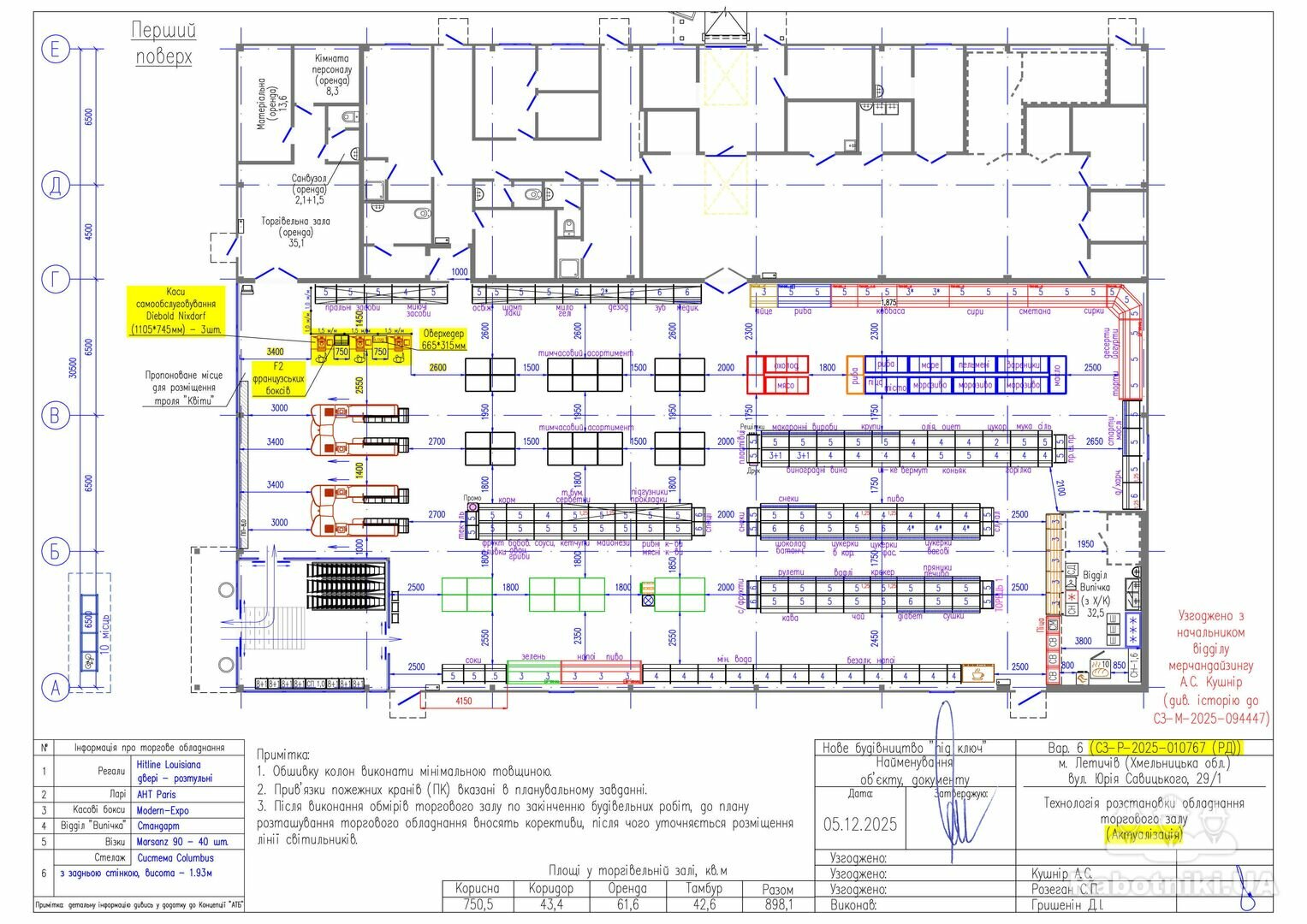
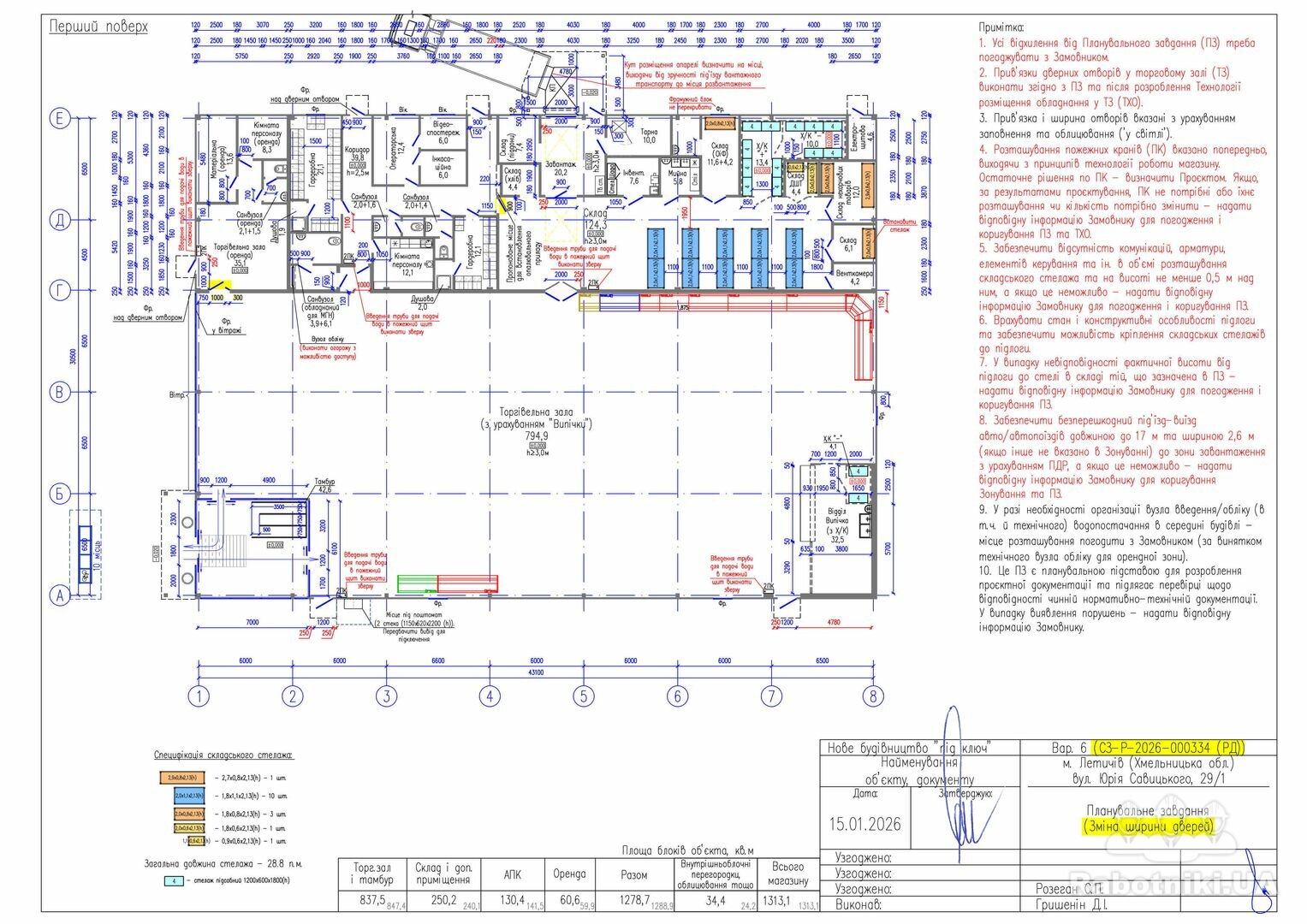
Оплата за готівку, загальна площа - 1313 кв.м
Термін на виконання - 2 місяці, всі матеріали наші.
Додаю ПЗ та ТХО а також проект по СХОЖОМУ магазину.

Пишіть або телефонуйте

Бюджет до 300 000 грн
Подрядчик (ищу на субподряд)
Можно начать 06.04.2026, Нужно закончить до 31.05.2026
Отредактировано 02.04.2026, 12:06:54

ТОВ "ВП Інтерстройсервіс"
Зарегистрирован год назад
Был на сайте 7 часов назад
Летичев (Хмельницкая область)
Предложения по тендеру (2)
Компания Игорь Шербан
На сайте уже 7 лет
Был 9 дней назад
Рейтинг: 37 из 80
Авто-перевод Показать оригинал
Предоплата: С частичной предоплатой
Количество человек: 6

Доброго дня, готові обговорити виконання Вашого ТЗ.

(067) xxx xxxx Ігор

месяц назад
Бригада Buduyu
На сайте уже месяц
Был месяц назад
Рейтинг: 26 из 80
Количество человек: 6

Телефонуйте (098) xxx xxxx

месяц назад
Служба поддержки