Тендер на остекление балконов (Киев)

№239927
Тендер открытТендер открыт для предложений
Тендер на остекление балконов (Киев)

Тендер на остекление балконов (окна в пол)

Ищем подрядчика для выполнения работ по остеклению балконов.

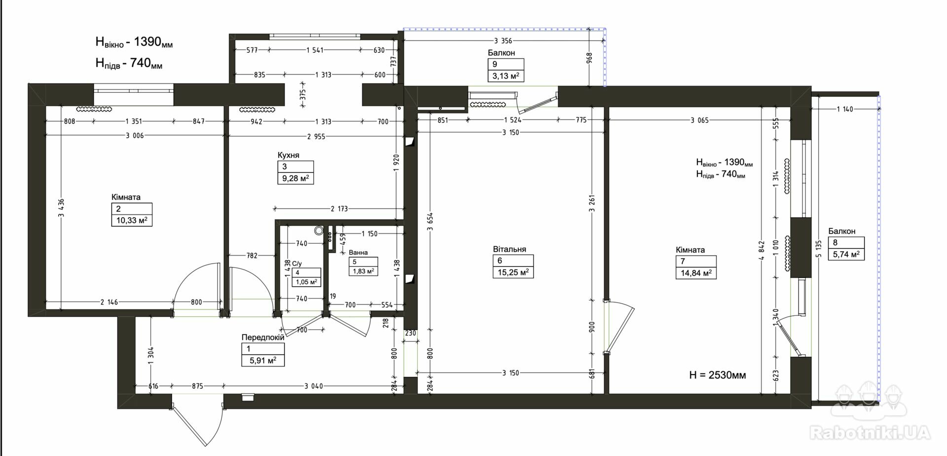
📍 Локация: г. Киев, Левый берег, ул. Тычины
🏢 Объект: 2 балкона

Задача:

  • Установить окна в пол на двух балконах
  • Балкон №1 требуется изготовление и монтаж крыши (сварочные работы)
  • Балкон №2 крыша уже есть
  • Полное остекление под ключ

Есть:

  • Детальная информация и замеры (в файлах)
  • Просчёты других компаний (без цен)

Нужно от вас:

  • Итоговая стоимость за весь объём работ
  • Сроки выполнения
  • Краткое описание материалов (профиль, стеклопакеты)

📩 Ждём предложения с ценой

Бюджет до 100 000 грн
Владелец
Можно начать 23.04.2026

Олександр
Зарегистрирован 2 года назад
Был на сайте 6 часов назад
Киев (Киевская область)
Добавить предложение
Служба поддержки