Тендер на выполнение сантехнических работ (Киев)

№239929
Тендер открытТендер открыт для предложений
Тендер на выполнение сантехнических работ (Киев)

Тендер на выполнение сантехнических работ

Ищем подрядчика для выполнения сантехнических работ.

📍 Локация: г. Киев
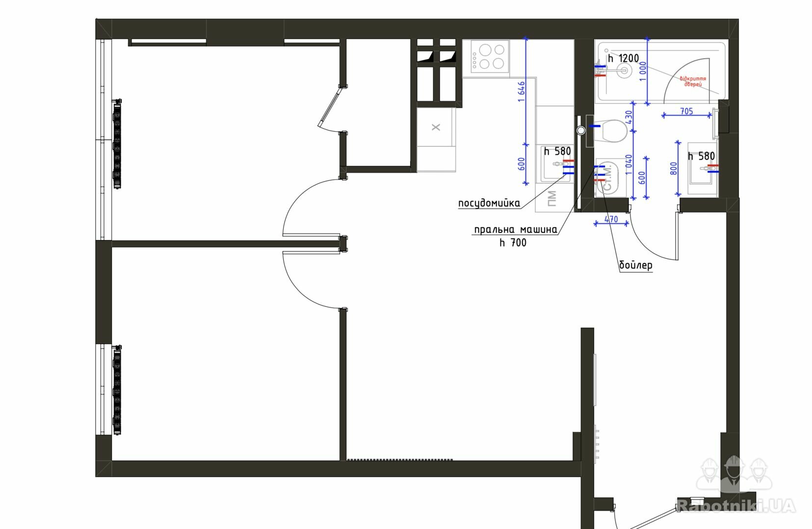
🏢 Объекты: 3 квартиры в одном доме

Задача:

  • Выполнение сантехнических работ под ключ согласно плану
  • Разводка воды и канализации
  • Подготовка выводов под сантехнику

Есть:

  • План сантехнических работ (прилагается)

Нужно от вас:

  • Стоимость за весь объём работ (под ключ)
  • Сроки выполнения
  • Когда готовы начать

📩 Ждём предложения с ценой

Бюджет до 50 000 грн
Владелец
Можно начать 23.04.2026
Отредактировано 23.04.2026, 23:10:24

Олександр
Зарегистрирован 2 года назад
Был на сайте 2 часа назад
Киев (Киевская область)
Добавить предложение
Служба поддержки