Демонтаж стен (Киев)

№239138
Тендер открытТендер открыт для предложений
Демонтаж стен (Киев)

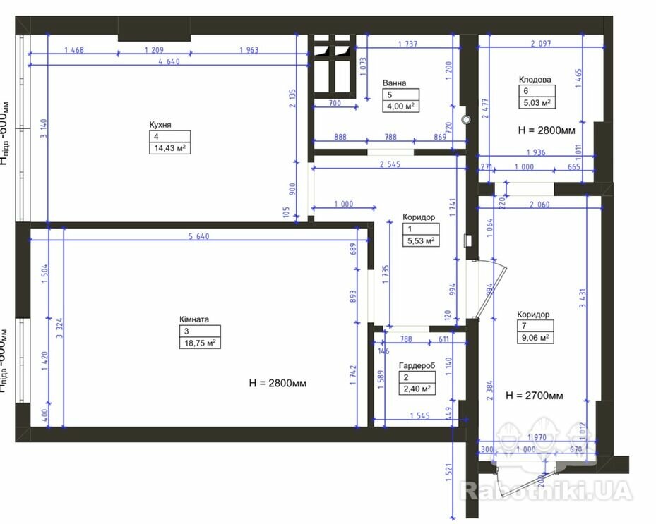
Нужен демонтаж стен. План прилагается.

Интересует стоимость и сроки начала работ.

Ищем исполнителя с минимальной ценой. Есть объёмы сейчас 2 3 объекта под демонтаж.

Бюджет до 6 000 грн
Владелец
Можно начать 14.04.2026

Олександр
Зарегистрирован 2 года назад
Был на сайте 2 часа назад
Киев (Киевская область)
Добавить предложение
Служба поддержки