Ищем бригаду для достройки 2го этажа дома (Березовка)

№54900
Тендер закрыт
Ищем бригаду для достройки 2го этажа дома (Березовка)

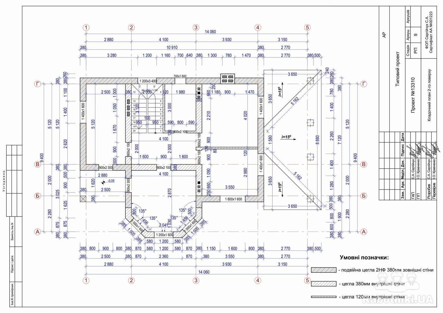
В прошлом году построен фундамент ,1этаж и монолитное перекрытие над 1м этажом. С первым этажом есть нюансы-раствор слабый, стал вымываться,нужно расшить швы и заполнить прочным раствором. Также нужно демонтирвоать перемычки над проемами и залить новые. Затем нужно начать строительство второго этажа, перекрытия по балкам и кровли. Материал стен - пустотелый кирпич 2НФ Керамейя, полнотелый кирпич для вентканалов. Монолитный пояс по второму этажу под кровлю. Крыша-мин.вата по чердаку и битумная черепица. Площадь этажа около 80кв.м. Проект есть. Интересует смета с ценой за работы, и идеале хотелось бы нанять одну бригаду для завершения коробки дома. Уточняю для нечестных людей-материалы и обьемы работ посчитаны.

Бюджет до 150 000 грн
Можно начать 07.03.2018

Наталья
Зарегистрирован 7 лет назад
Был на сайте 5 лет назад
Березовка (Одесская область)
Предложения по тендеру (40)
Бригада Владислав Шепель
На сайте уже 11 лет
Был 3 часа назад

Добрый день, в ближайшие время можем помочь с постройкой и отделкой вашего дома. Цены доступные но и не самые низкие. Работаем на качество.

7 лет назад
Бригада Unicore Building
На сайте уже 8 лет
Был год назад
Рейтинг: 32 из 80
7 лет назад
Бригада буд-ком стиль
На сайте уже 10 лет
Был 3 года назад
Рейтинг: 27 из 80
7 лет назад
Мастер Вячеслав Шабала
На сайте уже 7 лет
Был 2 года назад
7 лет назад
Бригада Гарантия комфорта
На сайте уже 7 лет
Был 7 лет назад
Рейтинг: 0 из 80

Здравствуйте Наталья. Мы готовы выполнить Ваш заказ в полном объеме. У Нас большой опыт работы более12 лет. Работаем аккуратно качество превосходное. Стоимость выполнения Вашего заказа; -кладка керамогранит блока -500 гр м3. -кладка вен-каналов 380гр,м/п. -армопояс 150 гр.м/п. -перекрытие дерев 100 гр,м2. -Кровля 220 гр,м2. Устронение дефектов кладки нужно смотреть по факту , минимальные затраты . Если Вас заинтересовало наше предложен-е звоните или пишите по всем интересующим Вас вопросам.

7 лет назад
Компания ВУД ІНЖИНІРИНГ
На сайте уже 11 лет
Был 9 месяцев назад
Рейтинг: 40 из 80

Можем быть Вам полезными

7 лет назад
Бригада МегаСержбуд
На сайте уже 8 лет
Был 5 лет назад
Рейтинг: 26 из 80

Добрый день,Наталья! Наша строительная бригада готова предоставить свои услуги Вам. Писать много не привыкли, а любим доказывать свою специализацию в работе. Вся бригада дисциплинирована без всяких не хороших привычек. Для детального просчета вышлите пожалуйста проект 2-го этажа вместе с кровлей. То , что осталось сделать . От нас Вы получите сметную стоимость по окончательным работам. Заранее спасибо. С наступающим праздником 8-го марта.

7 лет назад
Бригада Лісниченко
На сайте уже 11 лет
Был год назад

Доброго дня, пропонуеме вам свої послуги, наші роботи в профілі, можна подивитися на наші роботи в живу, е відповідна будівельна освіта. Деякі роботи можете подивитися тут-http://www.stroimdom.com.ua/forum/showthread.php?t=100344 Кладка керамоблока-450грн/м.кб. Армопояс та перемички-250грн/м.п. Криша-350грн/м.кв. З повагою Юрій.

7 лет назад
Бригада Бригада України
На сайте уже 7 лет
Был 7 лет назад
Рейтинг: 0 из 80

Добрий день!Можемо виконати роботу! Звоніть домовимося!

7 лет назад
Компания РСК АЛЬБА
На сайте уже 10 лет
Был 11 часов назад
Отправил личное сообщение
7 лет назад
Компания Ванбуд Плюс
На сайте уже 8 лет
Был 11 месяцев назад
Рейтинг: 28 из 80

Мы профессионалы, которые готовы вложить свои знания, умения и опыт в реализацию Вашей идеи. Свяжитесь с нами и мы обсудим Ваш будущий проект. На нашем сайте http://vanbud.com.ua/ Вы можете ознакомиться с примерами работ сделанными нашими специалистами.... Tел (067) xxx xxxx Email: vanbudplus@ukr.net Сайт http://vanbud.com.ua/

7 лет назад
Компания Цісар Архітек
На сайте уже 10 лет
Был 6 лет назад
Стоимость работ: 200

Готовы выполнить ваш заказ ! Павел (050) xxx xxxx (050) xxx xxxx Tsisar_arhitek@ukr.net http://arhitek.com.ua/

7 лет назад
Бригада работы под ключ
На сайте уже 9 лет
Был 10 месяцев назад
Рейтинг: 28 из 80

(067) xxx xxxx Валерий

7 лет назад
Компания Smart Engineering Systems
На сайте уже 9 лет
Был 5 месяцев назад

Добрый день, Наталья.

Готовы выполнить инженерную часть Вашего проекта.

Наша компания предоставляет инженерные услуги в сфере строительства с 2007г. (проектирование/монтаж/сервисное обслуживание систем отопления, водоснабжения, канализации, вентиляции в частных домах, коттеджах, многоэтажных домах и на промышленных объектах.)

Сотрудники компании владеют многолетним опытом в решении задач различной сложности, а стремление постоянно совершенствовать свои навыки и поднимать профессиональный уровень, дает возможность применять в своих проектах передовые, энергосберегающие технологии.

Преимущество работы с нами - комплексный подход, при решении поставленных задач, который можно разделить на несколько этапов: • выявление потребностей клиента, нахождение технического решения; • расчет проекта, оформление спецификации и сметы; • подбор и поставка оборудования; • выполнение монтажных и пусконаладочных работ; • сервисное обслуживание и осуществление гарантийного ремонта; • обучение персонала технически грамотному обслуживанию смонтированных систем.

Подробная информация о компании на сайте: https://smartes.com.ua А также в группах соц.сетей: https://plus.google.com/+SmartesUa https://www.facebook.com/smartes.com.ua https://www.instagram.com/smartes.com.ua https://twitter.com/SmartesUa https://goo.gl/LpT3N5

7 лет назад
Бригада Буд-евро
На сайте уже 9 лет
Был год назад
Рейтинг: 30 из 80
Отправил личное сообщение
7 лет назад
Бригада ,работники
На сайте уже 10 лет
Был день назад
Рейтинг: 32 из 80

Здравствуйте ! Более 20 лет только занимаемся строительством частных домов от нуля и под ключ. Сюда много не напишешь все расценки конкретно. Поэтому отправьте пожалуйста проект на мою почту . Дам подробный ответ. Спасибо. dammas.64@ukr.net

7 лет назад
Компания Архитектурно-строительная компанияТриумф
На сайте уже 8 лет
Был 6 лет назад
Рейтинг: 0 из 80
7 лет назад
Мастер андрей кузн
На сайте уже 9 лет
Был 6 лет назад
Рейтинг: 0 из 80

звоните выполним

7 лет назад
Компания MEBELCOM
На сайте уже 8 лет
Был 5 лет назад
Рейтинг: 26 из 80
Отправил личное сообщение
7 лет назад
Бригада винбудмонтаж
На сайте уже 8 лет
Был 3 года назад
Рейтинг: 32 из 80
Отправил личное сообщение
7 лет назад
Компания тов компания Н.А.С.
На сайте уже 10 лет
Был 12 дней назад
Рейтинг: 29 из 80

Работа 2нф 550 грн. Куб Пояс 250 грн. Куб Кровля под ключ 500 грн кв

7 лет назад
Бригада Remont. ua
На сайте уже 7 лет
Был 5 лет назад
Рейтинг: 29 из 80

Набирайте обсудим, цены на работы любоеадекватные. Готовы приступить к работе в время.

7 лет назад
Бригада РемБудТехнології
На сайте уже 10 лет
Был 7 месяцев назад
Рейтинг: 33 из 80
Отправил личное сообщение
7 лет назад
Бригада Строитель 05101980
На сайте уже 8 лет
Был 7 лет назад
7 лет назад
Бригада Сергій Іванович
На сайте уже 9 лет
Был год назад
Рейтинг: 26 из 80

Добрый день Наталья.Мы готовы обсудить ваше предложение.

7 лет назад
Бригада VIKBUD-SIT
На сайте уже 11 лет
Был 2 года назад

Доброго дня. Готовий виконати весь цикл робіт (097) xxx xxxx Володимир

7 лет назад
Бригада Житло-буд
На сайте уже 9 лет
Был год назад

Здравствуйте! Готовы выполнить рсботу. Для ознакомления и составления сметы отправьте троект на konkors@ukr.net С ув., Владимир.

7 лет назад
Бригада Малоэтажное строительство и ремонт
На сайте уже 7 лет
Был день назад
Рейтинг: 40 из 80

Готов просчитать стоимость. Пришлите пожалуйста разрезы здания.

7 лет назад
Мастер ТОВ "КОМПАНІЯ ЕЛЕКТРОМОНТАЖ ПЛЮС"
На сайте уже 8 лет
Был 2 месяца назад
Компания Будгранд
На сайте уже 7 лет
Был год назад
Рейтинг: 27 из 80
Отправил личное сообщение
7 лет назад
Компания ТОВ БМІК
На сайте уже 7 лет
Был 4 года назад
Отправил личное сообщение
7 лет назад
Компания ТОВ "ТУРА УА"
На сайте уже 7 лет
Был 6 дней назад
Рейтинг: 31 из 80

Компания "Тура УА" предлагает вашему вниманию услуги аренды опалубки, лесов, передвижных вышек-тур. При предоставлении чертежа наши инженеры рассчитают необходимое количество оборудование, способ монтажа и стоимость данной услуги.

7 лет назад
Бригада Строители
На сайте уже 7 лет
Был 28 дней назад
Рейтинг: 29 из 80

Доброго дня! Весь комплекс робіт включая кровлю, водосток і підшиву

7 лет назад
Бригада Виталь
На сайте уже 10 лет
Был год назад
Рейтинг: 28 из 80

Здравствуйте. Буду рад предоставить свою услугу по строительству дома+крыша . Стоимость за роботу. Кладка кирпича 550грн.м3. Устройство армопояса 200грн.м.п. Устройство крыши 300грн.м2

7 лет назад
Компания ТОВ ДОМОБУДИНВЕСТ
На сайте уже 11 лет
Был 6 лет назад
7 лет назад
Компания DREAM-HOME.KIEV.UA
На сайте уже 11 лет
Был 4 дня назад

Добрый день, Наталья

Основным направлением нашей сферы деятельности, является предоставление услуг на профессиональном уровне по строительным работам по ключ. Мы работаем с соблюдением всех строительных требований и правил (нормативы по застройке частного дома). Правильная организация всех этапов строительства, техника, закупка и доставка любых материалов. Работаем быстро, качественно и аккуратно. Соблюдение всех технологий и обязательств перед Заказчиком. Весь инвентарь, иструменты и оборудование, имеются свои! Без вредных привычек. На все произведенные нами, виды работ даем гарантию! Более подробно можно узнать перейдя по ссылке ниже...

Выбирайте достойное, а не доступное. И Вы получите долговечное счастье, а не временное удовольствие! Обращайтесь к специалистам и мы с огромным энтузиазмом, и в кротчайшие сроки реализуем Ваши идеи!

P.S. Наталья, пришлите пожалуйста рабочие чертежи, по тем этапам которые необходимо произвести для полного завершения строительства Вашего дома. Для составления сметы!

Жду ответа...

Всегда рады и открыты для сотрудничества!

Email: stryukoffserg@gmail.com Tel:(096) xxx xxxx / (096) xxx xxxx:Viber Dream-home.kiev.ua

С уважением, Сергей Стрюков

7 лет назад
Бригада Фундамент+коробка
На сайте уже 7 лет
Был 2 года назад
Рейтинг: 27 из 80

Здравствуйте Наталья! В идеале 2 НФ класть на теплый раствор с использованием фасадной сетки. Можем взяться за Ваш объект. Кладка стен 2НФ 650 грн м3,эркер 750 грн м3,армопояс 200 грн м.п вентканалы 350 грн м.п,перекрытие по деревянным балкам 140 грн м2.Крыша "холодная" битумная черепица 300 грн м2. Остальное после осмотра объекта. Спасибо

7 лет назад
Мастер Андрнй Лытвыненко
На сайте уже 7 лет
Был 5 лет назад
Рейтинг: 27 из 80

Здравствует наша брыгада состоит из 4 человек, можем приступить когда вам будет удобно, цены средние кирпич будет стоять 550 куб крыша битумная от 250 квадрат, армопояс 150 м.п и перемычкы будут стоять 170м.п звоните будем рады з вами роботать!

7 лет назад
Бригада Хаймик
На сайте уже 7 лет
Был 2 дня назад
Рейтинг: 33 из 80

готові виконати вашу роботу. всі питання по тел.

7 лет назад
Бригада ДомСтройБуд
На сайте уже 7 лет
Был 15 часов назад
7 лет назад
Служба поддержки