Ищу бригаду для постройки дома из газоблока. (Верховина)

№54307
Тендер закрыт
Ищу бригаду для постройки дома из газоблока. (Верховина)

Планируемое начало работ: май-июнь 2018

На данный момент: 1. Прошлой осенью залит фундамент. 2. Построено подсобное помещение (газоблок,24 м2) Может использоваться для жилья, оборудуем всем необходимым. 3. На участке есть колодец, вода техническая. Туалет. Летний душ нужно будет построить (за отдельную плату) 4. Завезен весь газоблок и клей. Насчет клея нужно будет посмотреть, как он пережил зиму. Если плохо, купим другой на месте .Планировали кладку начать осенью, но местные умельцы с фундаментом затянули так, что уже поздно было. 5. Электричество брали у соседа, но скорей всего к весне подключим свое. 6. Лес на перекрытие и крышу закажем весной.

Что нужно сделать: 1. Сделать обратную засыпку земли (осенью не успели). 2. Сложить коробку (внешние стены и перегородки). 3. Армопояс 1-го и 2-го этажей, перемычки над окнами и дверями, 2 плиты под санузлы на 2-м этаже, 2 балки под простенки, стяжка 1-го этажа (бетонные работы). 4. Межэтажное перекрытие (балки). 5. Крыша с утеплением (металлочерепица).

Нужна бригада, которая сможет сделать все работы - от фундамента до крыши, чтобы не искать новых людей на каждый этап. Мы из Харькова, так что постоянно находиться там не сможем, только периодически приезжать. Если есть харьковчане, имеющие желание поработать на выезде - было бы неплохо, в плане, что можно встретиться лично и подробно все посмотреть и обсудить.

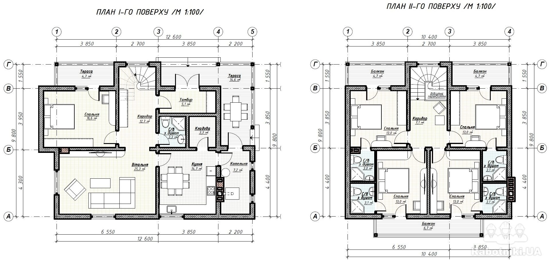
Просьба предложения отправлять на email. В аттаче планы этажей. Есть более подробная информация.

Бюджет до 90 000 грн
Можно начать 18.02.2018

Олег
Зарегистрирован 8 лет назад
Был на сайте 2 года назад
Верховина (Ивано-Франковская область)
Предложения по тендеру (34)
Мастер Дмитрий Кот
На сайте уже 11 лет
Был час назад
Отправил личное сообщение
8 лет назад
Бригада Древляни
На сайте уже 9 лет
Был 6 месяцев назад

Телефонуйте - домовимось.

8 лет назад
Бригада Камила
На сайте уже 8 лет
Был день назад

Доброго времени суток! Мой застройщик тоже из Харькова, сейчас заканчивает объект заграницей и в марте готов брать заказы по Украине. Можем сбросить фото текущего объекта, если откликнитесь и сбросите для просчета рабочий проект на мой электронный адрес 4kkamila1@gmail.com , либо viber +994509849878 (Руслан )

8 лет назад
Бригада Долина
На сайте уже 9 лет
Был 2 года назад
Рейтинг: 32 из 80
Стоимость работ: 100000

Готовы аыполнить Ващ заказ. Исходя с предыдущих построеек стоимость будет 100-120 тыс. Для более жетального просчета сметы необходимы все чертежт. Срок исполнения при наличии всего материала 1.5-2 месяца. Готовы приступить в мае. Если можно сбросьте на sergond@ukr.net весь комплект документов я просчитаю к-во материала а также обьемы работ и сброшу Вам на почту. Заранее спасибо. С ув.

8 лет назад
Бригада Гарантия комфорта
На сайте уже 8 лет
Был 8 лет назад
Рейтинг: 0 из 80

Здравствуйте. Мы готовы выполнить Ваш заказ в полном объёме. Мы в Киеве но мы харьковчани. Большой опыт работы. Приехать в Харьков нет трудностей. Цены невысокие. Если Вам интересно? Будем рады помочь Вам.

8 лет назад
Бригада Альтербуд
На сайте уже 10 лет
Был 22 дня назад

Добрый день Олег. Меня зовут Антон. Я инженер-конструктор и архитектор. Последние 3 года со своей бригадой занимаюсь строительством частных домов под ключ (без меблировки). Кроме общестроя монтируем станции очистки, топочные различных типов, заземления и прочее. Свое профильное оборудование: генератор, леса, виброплиты, подьемники и прочее. Работаем качественно и в минимальные сроки, но нацелены на комплексное выполнение обьекта, так как много инструмента возить ну и за качество соответственно отвечаем только мы. На апрель-май запланировано возведение дома под Киевом. Если приемлимо начало работ с Июня, готов подробно обсудить условия.

8 лет назад
Бригада Житло-буд
На сайте уже 10 лет
Был год назад

Здравствуйте! Предлагаем свои услуги по строительству, опыт работы 20 лет. Для ознакомления и составления сметы отправьте проект на konkors@ukr.net С уважением, Владимир.

8 лет назад
Компания ТОВ БМІК
На сайте уже 8 лет
Был 5 лет назад
Отправил личное сообщение
8 лет назад
Бригада Строем Дом Від ноля Під ключ
На сайте уже 8 лет
Был 29 дней назад
Рейтинг: 36 из 80

Адекватна брыгада 5 чоловик без вредных прывычок, можем взятысь комплексно за вси роботы. Звонить договорымся.

8 лет назад
Бригада DomoStart
На сайте уже 8 лет
Был 5 лет назад

Строим дом с нуля Комплексный и частичный ремонт квартир, офисов, домов: -кровельные работы -возвидение домов,срубов, -кирпичная кладка,блочная кладка -стяжка, штукатурка, малярные работы, сантехника; - гипсокартон любой сложности, плиточные работы; -электротехнические работы, замена и установка дверей; - теплополы, ламинат, плитка, вагонка; -помощь в подборе материалов; Многолетний опыт и творческий подход к работе, составляют залог нашего успеха, domostart.mail@gmail.com

8 лет назад
Бригада тепло- сервис
На сайте уже 11 лет
Был 3 года назад
Рейтинг: 30 из 80

Добрый день Олег! Воплощаем коммуникационные решение от от проекта до поставки оборудования и монтажа : С уважением Николай тел (050) xxx xxxx

8 лет назад
Бригада Отвес
На сайте уже 10 лет
Был 8 месяцев назад
Рейтинг: 34 из 80

Работа по газоблоку 350 грн м3. Если устраевает цена, скиньте нам свою почту где мы предоставим весь перечень работ указаный вами с ценами. Отзывы о нашей работе читайте.

8 лет назад
Компания Ростислав Цыпунов
На сайте уже 9 лет
Был 16 дней назад
8 лет назад
Компания REMONTHOME
На сайте уже 9 лет
Был 6 лет назад
Рейтинг: 26 из 80

www.remont-home.com (099) xxx xxxx Роман

8 лет назад
Бригада Актив Електро
На сайте уже 12 лет
Был месяц назад
8 лет назад
Мастер Іван Ключук
На сайте уже 10 лет
Был год назад

(068) xxx xxxx Іван Миколайович я з Косова В Харкові біду кінець цего місяця закінчив об'єкти осінью в лубнах і у Києві шукаю роботу і бачу що Роб у верховні це недуже далеко від мене думаю що я вас мавби заінтересувати

8 лет назад
Бригада NENASHEV
На сайте уже 8 лет
Был 7 лет назад

Здрастуйте у нас умеренные цены по работе. могу показать несколько домов которые строили под ключ.

8 лет назад
Бригада Вованич
На сайте уже 9 лет
Был 5 месяцев назад
Рейтинг: 28 из 80

Готов обсудить,звоните.спс

8 лет назад
Бригада Хаймик
На сайте уже 8 лет
Был час назад
Рейтинг: 35 из 80

Готові виконати вашу роботу якісно та швидко. Всі деталі по тел.

8 лет назад
Мастер Игорь Мчедлишвили
На сайте уже 8 лет
Был 2 года назад

Здравствуйте,обсудим и в указаный вами срок приступим...!

8 лет назад
Бригада Віталій1990
На сайте уже 8 лет
Был 2 года назад
Рейтинг: 35 из 80
8 лет назад
Бригада Юрий Резник
На сайте уже 12 лет
Был 3 месяца назад

бригада строителей с опытом работы и без вредных привычек готова выполнить Ваш заказ есть готовые работы которые можно посмотреть фото работ есть в портфолио Стоимость работ- земляные работы 220гр\м3 кладка газоблока с армировкой 350гр\м3 устройство армопояса и перемычек 180гр\м\пог монолитное перекрытие\опалуба Ваша\ 210гр\м2 устройство кровли 240гр\м2 устройство чернового пола\бетон\ 70гр\м2 Бригада из г Черкассы

8 лет назад
Бригада Строители
На сайте уже 8 лет
Был 4 дня назад
Рейтинг: 30 из 80

Доброго дня. А де знаходиться участие? Готові зустрітись вас обговорить. Коробка + кровля

8 лет назад
Бригада Мел
На сайте уже 8 лет
Был год назад
Рейтинг: 26 из 80

Можем обсудить условия и сроки работы. (050) xxx xxxx Можем выехать на место. Как с Вами связатся ?

8 лет назад
Бригада Бригада универсалов профессионалов
На сайте уже 9 лет
Был 10 часов назад
Рейтинг: 36 из 80

Добрый день! Готовы сделать быстро и качественно большой опыт, цены: газоблок 530грн м3, армопояс 250м/п, кровля от 260грн м2, стяжка 150грн м2, цены на остальные виды работ можно будет обговорить при встрече! (068) xxx xxxx Игорь

8 лет назад
Бригада ТОВ"БК ПТБ"
На сайте уже 12 лет
Был 5 лет назад
Рейтинг: 27 из 80
Стоимость работ: 100

Сделаем все под ключ,при желании договор.Тел.(050) xxx xxxx.

8 лет назад
Бригада VVM
На сайте уже 11 лет
Был 2 дня назад
Рейтинг: 32 из 80
Отправил личное сообщение
8 лет назад
Бригада Roofmontag
На сайте уже 8 лет
Был 8 лет назад
Рейтинг: 0 из 80

Можем встретится обговорить условия работы и оплаты.можем полностью взяться за всё предложенные работы без предоплаты.по схеме сделали получили.так что звоните.выехать можем в ближайшее время.помтроеные нами дома поеюкажим как лично так можем и фото скинуть.цены в поле адекватные.

8 лет назад
Компания ТОВ "КТТ"
На сайте уже 11 лет
Был 4 года назад

Олег, цены (или предварительную смету) и фото наших объектов готовы выслать Вам на почту. Напишите нам сообщение ktt.kiev@gmail.com с описанием необходимых работ и Ваши условия, а так же контакты для уточнения деталей.

8 лет назад
Компания ЭкспрессРостСтрой
На сайте уже 10 лет
Был 2 года назад
8 лет назад
Бригада Изысканный дизайн, ремонт квартир
На сайте уже 8 лет
Был 3 года назад
Рейтинг: 28 из 80

Ищем перспективную работу,есть образования.оплата по факту

8 лет назад
Мастер GooD BuldinG
На сайте уже 8 лет
Был 8 лет назад
Рейтинг: 0 из 80

email

8 лет назад
Мастер GooD BuldinG
На сайте уже 8 лет
Был 8 лет назад
Рейтинг: 0 из 80

email

8 лет назад
Компания ТОВ "БудГідроТех"
На сайте уже 8 лет
Был 9 месяцев назад
Отправил личное сообщение
8 лет назад
Служба поддержки