Установка деревянных плинтусов. (Киев)

№55398
Тендер закрыт
Установка деревянных плинтусов. (Киев)

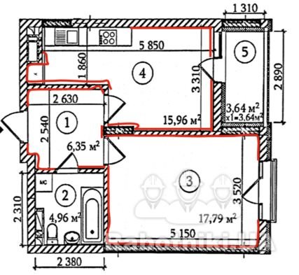
Нужно посчитать количество плинтусов(м.п) и установка их в квартире.

Бюджет до 2 000 грн
Можно начать 22.03.2018

Дмитрий
Зарегистрирован 7 лет назад
Был на сайте 7 лет назад
Киев (Киевская область)
Предложения по тендеру (23)
Бригада Бригада +20
На сайте уже 7 лет
Был 6 лет назад
7 лет назад
Мастер Сергей Юрковець
На сайте уже 11 лет
Был 16 дней назад
7 лет назад
Мастер Денис Садовский
На сайте уже 7 лет
Был год назад
7 лет назад
Мастер Руслан Елітсауна
На сайте уже 9 лет
Был 6 месяцев назад
Рейтинг: 33 из 80
Отправил личное сообщение
7 лет назад
Мастер Костянтин Ламінат
На сайте уже 11 лет
Был день назад
Рейтинг: 42 из 80

Укладка ламината.Паркет доски.Винил.Установка плинтусов.Вагонка.

7 лет назад
Мастер Михаил Мильшин
На сайте уже 11 лет
Был 6 месяцев назад

Паркетчик-профессионал предлагает весь спектр паркетных работ любого уровня сложности. В том числе установку плинтуса любой высоты. Есть весь необходимый инструмент. Доверьте работу специалисту!!!

7 лет назад
Мастер Александр Александр
На сайте уже 11 лет
Был 4 часа назад
Рейтинг: 44 из 80

Доброго времени суток. 40 - 42 м\п. плинуса. Установка 50 грн. м\п. (067) xxx xxxx

7 лет назад
Бригада незаменимые
На сайте уже 11 лет
Был 9 дней назад
Рейтинг: 30 из 80
Отправил личное сообщение
7 лет назад
Бригада Кузнецов и бригада
На сайте уже 11 лет
Был 6 лет назад
7 лет назад
Бригада Рембригада
На сайте уже 9 лет
Был 5 лет назад
Рейтинг: 31 из 80

Требуется 52 метра плинтуса ( это с маленьким запасом). Если потребуется всего по 2 метра думаю хватит 26 палок. Если по 2.5 метра требуется 21 палка.

7 лет назад
Бригада Алекдин
На сайте уже 7 лет
Был 6 лет назад

Здравствуйте,40м/пог.Работа-2000грн.

7 лет назад
Мастер Владимир Логвиненко
На сайте уже 11 лет
Был 6 часов назад
Рейтинг: 36 из 80

Добрый день ! Предлагаю Вам свои услуги. Сам являюсь исполнителем. Есть рекомендации. Примеры работ в профиле. Стоимость работ после ответа на интересующие вопросы

7 лет назад
Бригада Компания Devileplus.
На сайте уже 11 лет
Был 8 дней назад
7 лет назад
Бригада Удачный Ремонт
На сайте уже 8 лет
Был 4 года назад
Рейтинг: 27 из 80

Звоните пишите !

7 лет назад
Компания ООО"Экостиль"
На сайте уже 8 лет
Был 8 часов назад
Рейтинг: 32 из 80
Отправил личное сообщение
7 лет назад
Мастер Владимир Логвиненко
На сайте уже 11 лет
Был 6 часов назад
Рейтинг: 36 из 80

Добрый день !Предлагаю Вам свои услуги. Стоимость монтажа 40грн.м.п Сам являюсь исполнителем. Есть рекомендации. Примеры работ в профиле.

7 лет назад
Бригада Строители
На сайте уже 11 лет
Был 4 года назад
Рейтинг: 26 из 80

(099) xxx xxxx Дмитрий

7 лет назад
Мастер Роман Викторович Белоус
На сайте уже 8 лет
Был 7 лет назад
7 лет назад
Компания Сметацентр
На сайте уже 7 лет
Был 4 года назад
Рейтинг: 24 из 80
Отправил личное сообщение
7 лет назад
Бригада Каркасное строительство
На сайте уже 7 лет
Был год назад
Рейтинг: 28 из 80

Доброго дня, по ваших розмірах приблизно-38.66 м п.Це з 10% на підрізку. Можемо запропонувати свої плінтуса, такі як: деревяні, МДФ, Двп і так далі. Ціна за монтаж з розходним матеріалом за монтаж-70грн/м п Телефонуйте домовимося

7 лет назад
Бригада работы под ключ
На сайте уже 9 лет
Был 10 месяцев назад
Рейтинг: 28 из 80

(067) xxx xxxx Валерий

7 лет назад
Бригада Бригада "УютСтрой"
На сайте уже 8 лет
Был 6 лет назад
7 лет назад
Бригада Энки
На сайте уже 8 лет
Был 4 года назад
7 лет назад
Служба поддержки