Зробити теплу підлогу та сантехнікою (Софиевская Борщаговка)

№240125
Тендер открытТендер открыт для предложений
Зробити теплу підлогу та сантехнікою (Софиевская Борщаговка)
Авто-перевод Показать оригинал

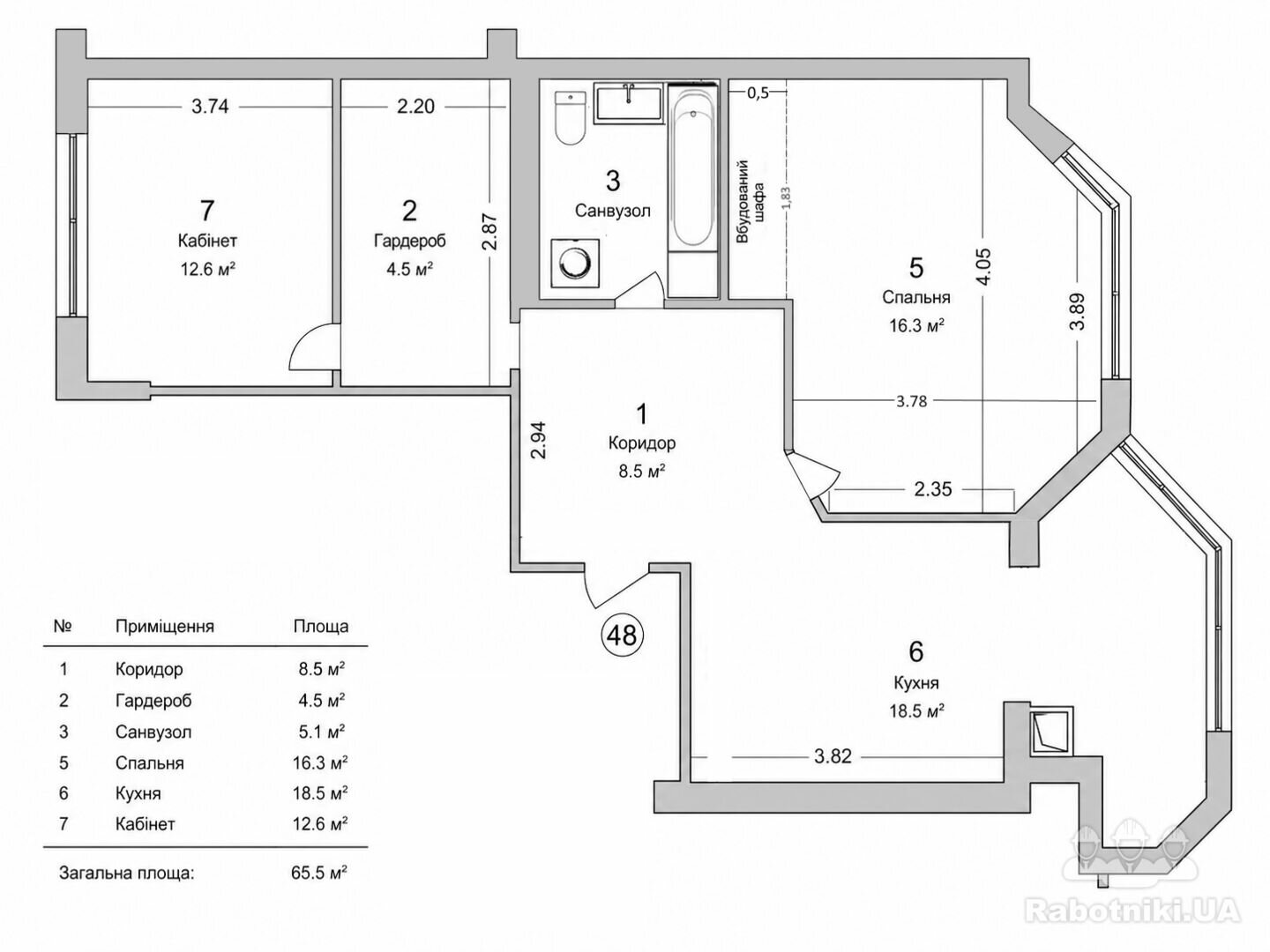
ЖК Софія резиденс. В нас від забудовника є теплі поли від котла двохконтурний) водяні. Але тільки на кухні.

Задача зробити і в інших кімнатах. (додати 5 контурів)

Монтажна площа полів 30 м

Зараз все в стяжці крім ванною, тому треба ще і демонтаж стяжки 39 м .

Зараз два контури теплих полів є. Відповідно треба:

  1. додати ще 5 контурів
  2. замінити колектор щоб під 7 контурів,
  3. додати циркуляційний насос
  4. змішувачі.

__________________________

Сантехніка туалет:

  1. Гігієнічний душ біля туалету
  2. Інсталяція під туалет
  3. Вивід під стіральну машину
  4. Під раковину гаряча/холодна
  5. Під ванну гаряа/холодна
  6. Вивід каналізації під 2шт траси кондиціонер
  7. Редуктор тиску
  8. фільтр грубої

розводку робити гребінкою
___________________
Кухня сантехніка:

1.Посудомийка
2. Вивід під сушильну машинку
3. Під раковину холодна/гаряча + ще вивід холодної під осмос питну воду

4. вивід під трасу кондьор трасу 1шт

Шукаю тих хто це зробить, а не ділків які будуть самі шукати спеціалістів. Підійде спеціаліст з напарником.

___

Бюджет до 100 000 грн
Владелец
Можно начать 28.04.2026

Єгор
Зарегистрирован 15 дней назад
Был на сайте 2 часа назад
Софиевская Борщаговка (Киевская область)
Предложения по тендеру (1)
Мастер Неупреждённый Консультант
На сайте уже 8 лет
Был 31 минуту назад
Рейтинг: 36 из 80
Предоплата: С частичной предоплатой

.

Здравствуйте.

Если себе то для снижэния количества противоречий здравому смыслу, ОБМАНА БЕЗсовестными, ОШЫБОК проэктировщиков что бывает в 99,999 % случаев, на картинках 6 из многочисленных ОШЫБОК, предлагаю купить ПОДРОБНУЮ консультацыю по водяному тёплому полу.

Материалы, монтаж *пирога* и подключения водяного тёплого пола, пункты нормативов и спецыализированные документы, СВОИ и других поясняющие рисунки, фотографии, видео, наглядный образец.

Если у Вас, близких, друзей руки мастеровые то сэкономите на работе и ГЛАВНОЕ сделаете водяной тёплый пол ЛУЧШЭ чем бывает в 99,999 % случаев.

Если на некоторые работы придётся нанимать то тех-заданием отсеете *ещё на берегу* явных дилетантов, БЕЗсовестных.

Консультацыя ОКУПИТСЯ как минимум на порядок за счет НЕ покупки НЕнужного, НЕ переплаты ПОСТОЯННО за покупные энергоносители. Будет ИСКЛЮЧЕНА вероятность дискомфорта и АВАРИИ могущей стоить НА ПОРЯДКИ дорожэ стоимости консультацыи.

.

Буду ПОЛЕЗЕН ПОДРОБНОЙ консультацыей в другой инженерии в которой ХОРОШО разбираюсь:

Резервное электроснабжение ИБП, СЭС обеспечивающее работу топливного котла, холодильника СУЩЕСТВЕННО дольшэ при той жэ ёмкости аккумулятора чем бывает в 99,999...% случаев, что важно когда сутками нет сети и пасмурно, особенно зимой.

Снижение затрат на отопление, ГВС.

Электрика квартир, одноквартирных домов на ВЫСОКОМ уровне БЕЗопасности. СВОИ многочисленные разработки, из которых по одной появилась в Украинских и МЭК нормативах.

Проверка выполненной электрики квартир, одноквартирных домов на наличие НЕ выполненных, НАРУШЭННЫХ нормативов, противоречий здравому смыслу.

Защита от ПОЖАРА по одному из пунктов нормативов США, ОБЯЗАТЕЛЬНАЯ в США для спальных, детских комнат.

Мелкий, при сопутствующих условиях средний, ремонт электрики бытовых электроприборов, автотранспорта, топливных электрогенераторов.

Многое другое.

Скачать файлы:
32 минуты назад
Добавить предложение
Служба поддержки