UA
RU
Знайти майстра
Наприклад:
Зробити ремонт в 1-к квартирі
Зареєструватися
Увійти
Rabotniki.UA
0
Rabotniki.UA
Реєстрація
|
Увійти
Створити тендер
Робітники
Тендери
Розцінки
Калькулятор
Працевлаштування
Вакансії
Резюме
Форум
Тендери на матеріали
Залишки після ремонту
Служба підтримки
UA
RU
Всі замовлення
Тендер №238856
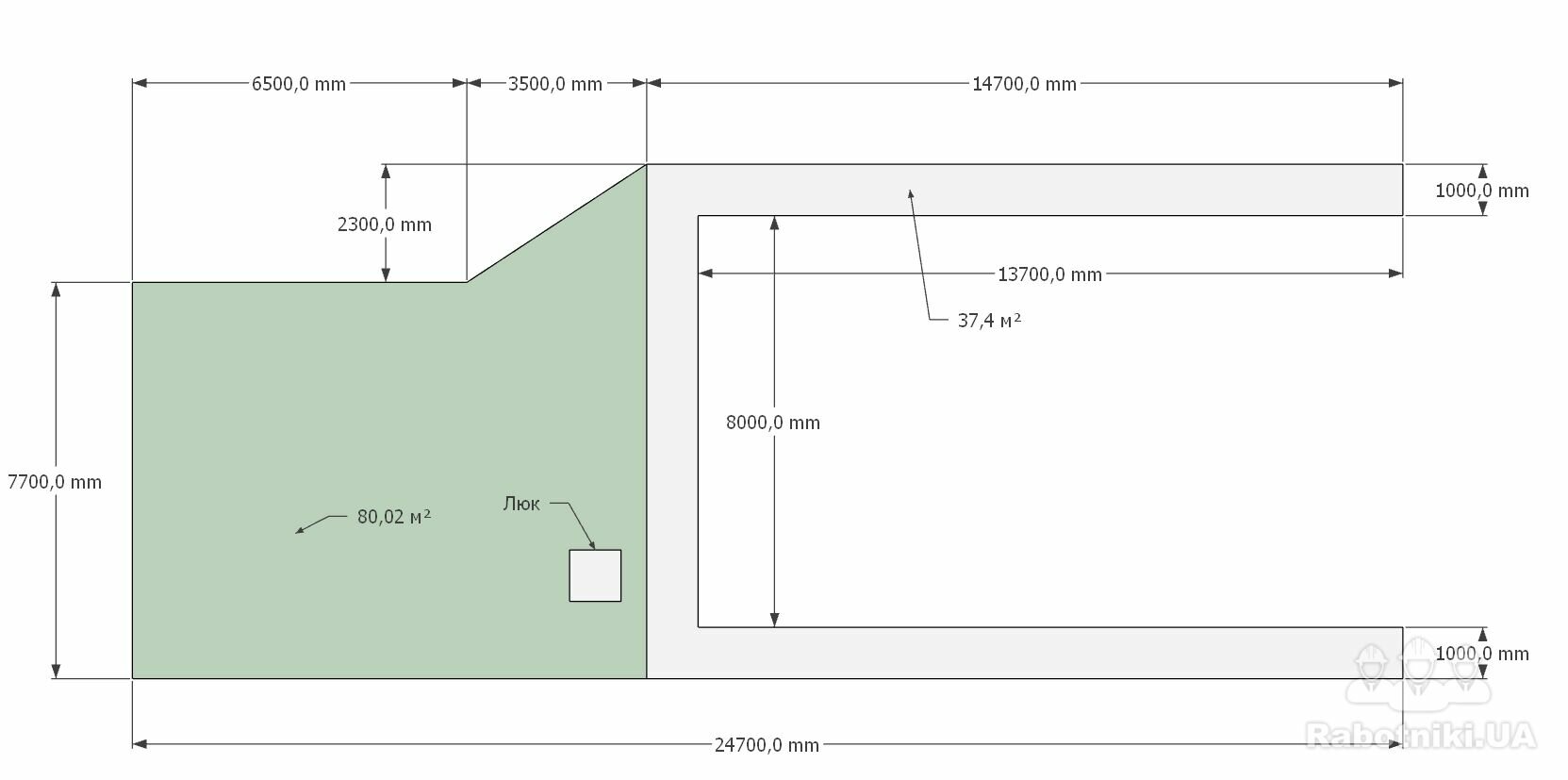
Брусчтака приватного будинку 117 м2 Осокорки (Київ)
№238856
Тендер відкрито
Тендер відкритий для пропозицій
ТОП
Брусчтака приватного будинку 117 м2 Осокорки (Київ)
Маємо Ділянку де потрібно
Забрати частину грунту (80м2) (з допомогую техніки (Бобкат)
Спалнувати рівень піском + геотекстиль + тромбовка
Засипати подушку щебню +тромбовка
Монтаж бордюра
Монтаж Люку
Вирівнювання сумішю
Вкладання брусчатки
Подушка:
Тротуарна
Гарцовка
5см Щебінь 5-20
15см щебінь 20-40
10см пісок
Бюджет до 100 000 грн
Власник
Можна почати 10.04.2026
Будівництво будинку
,
Тротуарна плитка
,
Земляні роботи
Відредаговано 11.04.2026, 17:37:36
Олексій Кримов
Зареєстрований рік тому
Був на сайті день тому
Київ (Київська область)
(063) xxx xxxx
Показати номер
Особисте повідомлення
Пропозиції по тендеру (2)
На сайті вже 9 років тому
Був 17 хвилин тому
Майстер "Сергей Соловей"
Рейтинг:
46 з 80
11 відгуків
Пропозиція прихована автором!
8 днів тому
На сайті вже 5 років тому
Був 11 годин тому
Бригада "Roboti"
Рейтинг:
37 з 80
Добрий день, пишить дзвоніть домовимся тай зробим
(097) xxx xxxx
7 днів тому
Додати пропозицію
Для того, щоб залишити пропозицію, Вам необхідно
Увійти
або
Зареєструватися
.
Служба підтримки
×