Кладка керамблоку та цегли 2 поверх (Вишгород)

№230210
Тендер закритий
Кладка керамблоку та цегли 2 поверх (Вишгород)

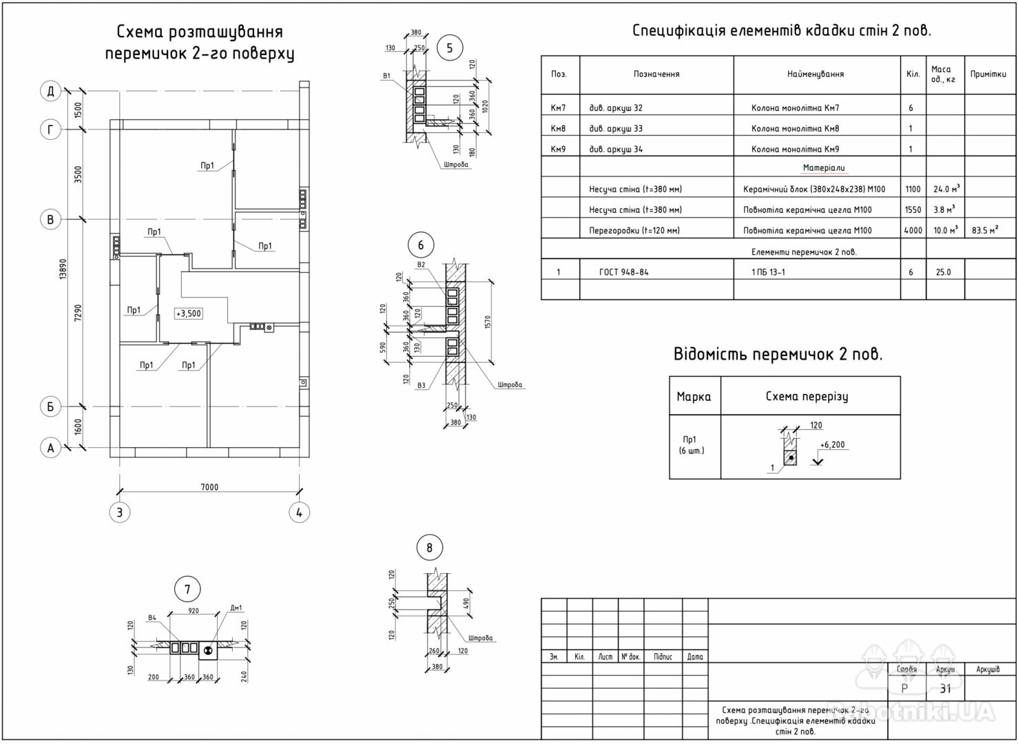
Кладка цегли м-100 та керамоблоку 380мм другий поверх:
1. Покласти рубероїд
2. Кладка цегли 3,8 м3
3. Кладка перестінок з цегли 83,5 м2
3. Кладка керамоблоку 24 м3
4. Перемички 6 штук
Житло надаємо

Бюджет до 10 000 грн
Власник
Можна почати 03.11.2025, Потрібно закінчити до 10.11.2025

ТОВ "КиївБудДевелопмент"
Зареєстрований 2 роки тому
Був на сайті 14 днів тому
Вишгород (Київська область)
Пропозиції по тендеру (1)
Майстер Наті Наті
На сайті вже 12 років тому
Був 24 хвилини тому
Рейтинг: 41 з 80
2 місяці тому
Служба підтримки