Плиточні роботи в санвузлах та кладових (прибл 80+- кв.м) (Київ)

№189224
Тендер закритий
Плиточні роботи в санвузлах та кладових (прибл 80+- кв.м) (Київ)

Потрібен досвідчений кваліфікований майстер для укладання плитки в санвузлах та кладових (новобудова).

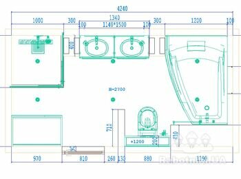
Плитка в СУ вся 600х1200, в одному СУ розкладка горизонтальна, в іншому вертикальна. Стіни відштукатурені більше місяця назад.

Багато запилів під 45 (прибл 30 м.п.). Троє дверей прихованого монтажу і відповідно відкоси. Майстер з проф.інструментом та пилососом. Запили (і всі шви) - має бути чітко рівно.

Встановлення двох ван (одна з них обкладається плиткою). Облицювання інсталяцій. Один душовий піддон конверт з бортом. Укладання електричної теплої підлоги в плиточний клей.

Є попередня розкладка плитки, але остаточній варіант буде узгоджувати сь з майстром.

Почати потрібно протягом наступних двох тижнів. Якщо буде бригада з кількох плиточників для пришвидшення роботи буде чудово, але важливо хороша якість.

У ваші ціновій пропозиції будь ласка вкажіть: 1- ціна за м2 укладки плитки, 2) ціна за 1 м.п. відкосу, 3 - ціна запилу під 45 за 1 м.п. різу, 4) ціна чистового різу, 5) ціна отворів під воду, розетки, інсталяцію. Також будь ласка прикладіть пару фото робіт до вашого повідомлення якщо у вашому профілі немає фото робіт.

Бюджет до 60 000 грн
Власник
Можна почати 27.05.2024, Потрібно закінчити до 14.06.2024
Відредаговано 24.05.2024, 10:10:47

Віталій
Зареєстрований 2 роки тому
Був на сайті 9 місяців тому
Київ (Київська область)
Пропозиції по тендеру (4)
Майстер Валерий Корся
На сайті вже 10 років тому
Був 4 дні тому
Можемо приступити: 24.05.2024
Вартість робіт: 100000-150000
Ціна за виїзд: 1500 грн
Передоплата: С частичной предоплатой
Кількість осіб: 1

Доброго дня. Не вказано місце розташування об єкта, якщо Оболонь, поділ, виноградар то перегляньте мою сторінку інстаграм korsa_tiler.

Буде цікаво надам повний прайс на вайбер.

Якщо потрібно якісно та професійно.

рік тому
Краща пропозиція
Майстер БАЙБАЛА Салманов
На сайті вже 6 років тому
Був 7 годин тому
Авто-переклад Показати оригінал
Кількість осіб: 2

Можем обсудить.

рік тому
Майстер Сергій Гречкосій
На сайті вже 2 роки тому
Був 19 днів тому

Телефонуйте,все обговоримо.Працюємо у двох.Є увесь необхідний професійний інструмент.

рік тому
Компанія Микола Панфілов
На сайті вже 5 років тому
Був 17 днів тому

Доброго дня. Виконаю ваше замовлення. Якість і гарантія на виконану роботу. Наші роботи : https://www.instagram.com/miy.budynok/

рік тому
Служба підтримки