Будівництво стрічкового фундамента (Київ)

№75644
Тендер закритий
Будівництво стрічкового фундамента (Київ)

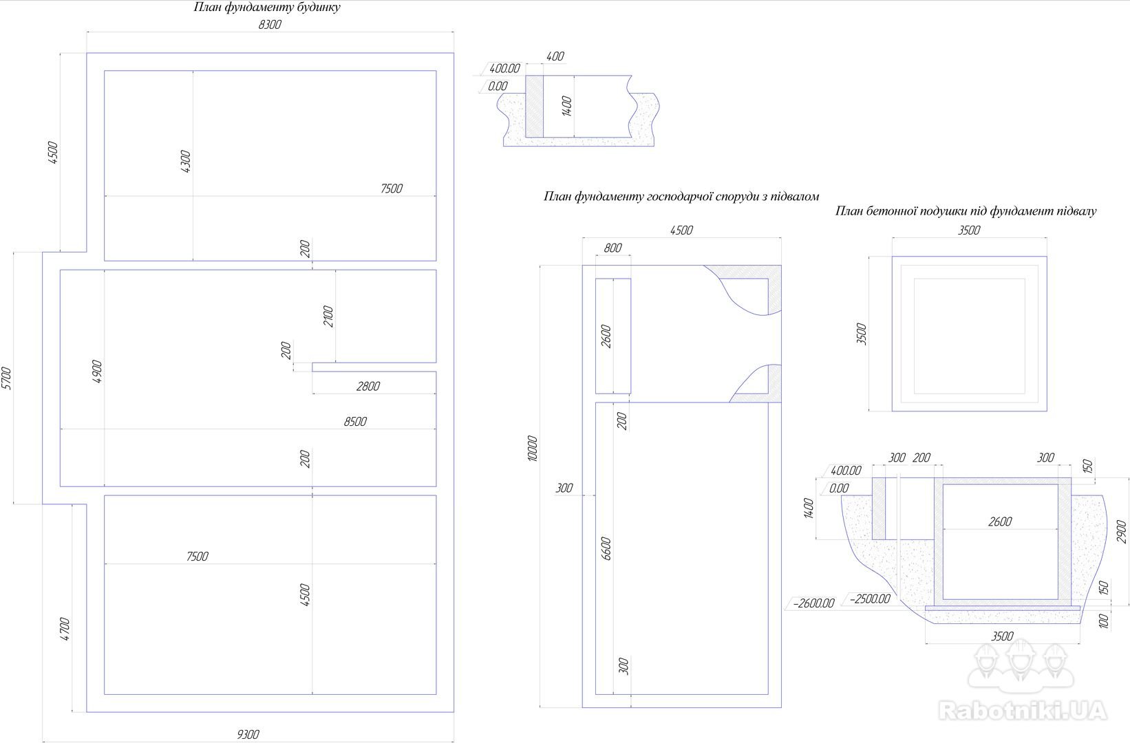
Будівництво фундамента для двоповерхового будинку

Бюджет до 90 000 грн
Можна почати 06.12.2018

victor.glukhovskyi
Зареєстрований 7 років тому
Був на сайті 7 років тому
Київ (Київська область)
Пропозиції по тендеру (25)
Майстер Леонид Зинчук
На сайті вже 9 років тому
Був день тому
7 років тому
Бригада Сергій Іванович
На сайті вже 9 років тому
Був рік тому
Рейтинг: 26 з 80
Відправив особисте повідомлення
7 років тому
Бригада ВПФ
На сайті вже 7 років тому
Був 4 години тому
Відправив особисте повідомлення
7 років тому
Компанія Архитектурно-строительная компанияТриумф
На сайті вже 9 років тому
Був 6 років тому
Рейтинг: 0 з 80

Добрый день! Наша компания готова выполнить для Вас полный комплекс строительных и отделочных работ под ключ согласно смете. Опыт более 10 лет С Уважением, Глазкова Инна www.abktriumph.kiev.ua

7 років тому
Бригада Армисан О
На сайті вже 8 років тому
Був 4 роки тому

Доброго дня. Можемо допомогти в проведенні робіт по влаштуванню фундаменту. Працюємо без посередників, складаємо кошторис, договір. Орієнтовна вартість робіт 1300-1500грн.м.куб Будем раді співпраці.

7 років тому
Бригада ВиталийБуча
На сайті вже 12 років тому
Був 3 роки тому
Рейтинг: 31 з 80

Добрый день! Бригада с Бучи, покажем готовые объекты и рекомендации от заказчиков, инструмент в наличии. Сбросьте Вашу электронку для просчета фундамента.

7 років тому
Компанія ,,ДИАНА,,
На сайті вже 7 років тому
Був день тому
Рейтинг: 44 з 80

Работаем в ваших краях можем подьехать обсудить,Весь материал,спецтехника,доставка имеется.Цены нормальные.Можем взять под ключ полностью дом.(099) xxx xxxx Александр. Звоните.

7 років тому
Бригада Ремонтно-строительная бригада
На сайті вже 11 років тому
Був 2 роки тому
Рейтинг: 26 з 80

Бригада с инструментом и опытом работ 5 лет. Выезд на объект бесплатно. Цены адекватные. Звоните (050) xxx xxxx или (050) xxx xxxx

7 років тому
Компанія ТОВ "ТУРА УА"
На сайті вже 7 років тому
Був 2 місяці тому
Рейтинг: 29 з 80

Добрый день, уважаемый партнер!

Компания "Тура УА" предлагает вашему вниманию услуги аренды опалубки, лесов, передвижных вышек-тур. При предоставлении чертежа наши инженеры рассчитают необходимое количество оборудование, способ монтажа и стоимость данной услуги.

Коваленко Сергей моб.: (067) xxx xxxx e-mail: s.kovalenko@altura.ua

7 років тому
Компанія Илья Пецик
На сайті вже 11 років тому
Був 4 години тому
Відправив особисте повідомлення
7 років тому
Бригада руки
На сайті вже 7 років тому
Був рік тому
Рейтинг: 26 з 80

уже готов (067) xxx xxxx

7 років тому
Бригада Будуймо разом!
На сайті вже 11 років тому
Був 9 днів тому
Рейтинг: 39 з 80

Доброго дня. Маємо немалий досвід роботи з бетоном. Звоніть, договоримся

7 років тому
Бригада АРИНБУД
На сайті вже 11 років тому
Був 4 роки тому
Рейтинг: 27 з 80

Доброго дня. Виконуємо фундаменти, але потрібно все рахувати, після отримання проекту. Звертайтесь, погодимо моменти.

7 років тому
Компанія ООО БК Кing Building
На сайті вже 8 років тому
Був 2 години тому

Добрый день. Наша строительная компания готова предложить свои услуги.Имеем опыт, и опытных специалистов по данному виду работ. Исходя из нашего опыта ориентировочная стоимость работ составит- 73153 грн. Но для более детального просчета вышлите пожалуйста проект данного фундамента. Заранее спасибо. Договор ,сроки, качество. ответственность , порядочность гарантируем.

7 років тому
Бригада Хаймик
На сайті вже 7 років тому
Був 2 місяці тому
Рейтинг: 31 з 80

Доброго дня готові виконати вашу роботу

7 років тому
Компанія Гидроизоляция Пенетрон
На сайті вже 7 років тому
Був 3 роки тому

Добрий вечір. Рекомендуємо при будівництві фундаменту скористатися гідроізоляційною домішкою Пенетрон Адмікс https://penetron.kiev.ua Використання цього матеріалу дозволяє захистити вашу конструкцію від вологи вже на етапі будівництва і без додаткових витрат.

7 років тому
Бригада Домострой Киев
На сайті вже 7 років тому
Був 6 років тому
Рейтинг: 0 з 80

Добрый Вечер. Мастера профессионалы с большим опытом, предлагаем Вам свои услуги по реализации выполнения вашего заказа. Стоимость работы 1000-ГР.М3 Обращайтесь.

7 років тому
Бригада РемБудТехнології
На сайті вже 10 років тому
Був 10 місяців тому
Рейтинг: 33 з 80
Відправив особисте повідомлення
7 років тому
Бригада ФайноСтрой
На сайті вже 8 років тому
Був 3 роки тому
Рейтинг: 28 з 80
Відправив особисте повідомлення
7 років тому
Майстер Коля Бабенко
На сайті вже 7 років тому
Був день тому
Рейтинг: 37 з 80

Здравствуйте,цена за м3-1400 грн без материалов

7 років тому
Бригада Профессиональная бригада!Строительство коттеджей
На сайті вже 9 років тому
Був 16 днів тому
Рейтинг: 30 з 80

Добрый вечер. Большой опыт работы, высокое качество. Порядочность. Не вижу Ваш номер, чтоб позвонить. Мой (067) xxx xxxx

7 років тому
Бригада работы под ключ
На сайті вже 10 років тому
Був рік тому
Рейтинг: 28 з 80
7 років тому
Бригада БМР
На сайті вже 7 років тому
Був 5 років тому
Рейтинг: 30 з 80
7 років тому
Бригада БМР
На сайті вже 7 років тому
Був 5 років тому
Рейтинг: 30 з 80
6 років тому
Компанія tov BUDENERGOKOMPLEKS
На сайті вже 11 років тому
Був 4 дні тому
Відправив особисте повідомлення
6 років тому
Служба підтримки