Демонтаж стін та плитки (Київ)

№230963
Тендер закритий
Демонтаж стін та плитки (Київ)

Доброго дня

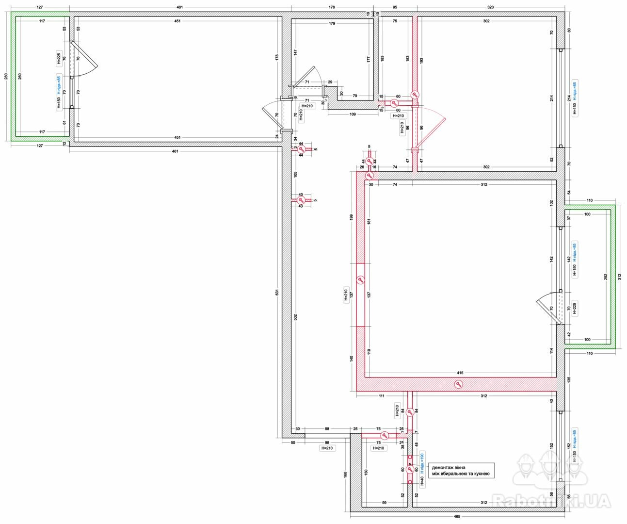
Потрібно знести міжкімнатні перестінки та демонтувати керамічну плитку

На прорахунок
Демонтаж стін в 1/2 кирпича = 20,3 м. кв
Демонтаж стін в 1 кирпич = 8,4 м. кв
Демонтаж плитки 34 м. кв

Цікавлять терміни та вартість виконання замовлення, окремо орієнтовна вартість вивозу будівельного сміття.

Вулиця Мечнікова 18

Бюджет до 7 000 грн
Власник
Можна почати 11.11.2025, Потрібно закінчити до 14.11.2025
Відредаговано 13.11.2025, 20:16:09

Сергій
Зареєстрований 3 роки тому
Був на сайті 5 місяців тому
Київ (Київська область)
Пропозиції по тендеру (5)
Бригада Швидкий демонтаж
На сайті вже 3 роки тому
Був 2 години тому
Рейтинг: 50 з 80
5 місяців тому
Бригада Демонтаж любой сложности под ключ
На сайті вже 8 років тому
Був 3 години тому
Кількість осіб: 4

Вітаю.Можемо виконати під ключ.Якісно.Пртґибирання, вивіз сміття

5 місяців тому
Бригада Демонтаж+
На сайті вже 11 місяців тому
Був 3 години тому
Рейтинг: 30 з 80
Авто-переклад Показати оригінал

Добрый вечер,занимаемся демонтажем и вывозом строй мусора под ключ. Можно фото объекта на Вайбер и просчитаем вам цену

(063) xxx xxxx

5 місяців тому
Майстер Денис Петренко
На сайті вже рік тому
Був 12 днів тому
Кількість осіб: 5

Демонтаж стін в 1/2 кирпича = 165 грн м2

Демонтаж стін в 1 кирпич = 300грн м2

Демонтаж плитки 175 грн м2

Вивіз будсміття з погрузкою без в носу 8000

Спуск фасовка у ваши мишки 3000 лифт Або + 10 грн мешок поверх

5 місяців тому
Бригада Frostico
На сайті вже 11 років тому
Був 4 дні тому
Рейтинг: 43 з 80
Авто-переклад Показати оригінал

Добрый день. Сбросьте проект, фото для ознакомления.

Строительство и ремонт коттеджей и квартир-основная наша специализация!

Высшее строительное образование и постоянное изучение новых технологий позволяет сэкономить ваши финансы и время без потери качества.

Оптимально-рациональный подход с вектором на долгосрочную эксплуатацию.

Стройте с нами - стройте правильно-стройте с первого раза!

Мой инстаграм:

https://www.instagram.com/serg_frostico/

Мой Тик Ток:

https://www.tiktok.com/@serg_frostico?_t=8iBJHjdr54H _r=1

Отзывы о нашей работе на странице.

Примеры работ в портфолио

5 місяців тому
Служба підтримки